Magnificent Double Storey Elegance
This opulent family home offers its new owner a luxurious lifestyle with quality fixtures and fittings throughout. Set in a quiet street amongst other quality homes, this home provides ample space for the entire family to live and play, whilst also delivering all of the benefits of a city fringe location. With a fantastic street appeal and a modern elegant style inside, there is nothing to do but simply move in, relax and enjoy this fabulous property!
Upper level comprising of:
- Large master bedroom with walk-in robe, built-in robes and immaculate ensuite with floor-to-ceiling tiles
- Generous sized bedrooms 2 and 3, both with built-in robes
- Stunning main bathroom with separate bath and shower and floor-to-ceiling tiles
- Storage space
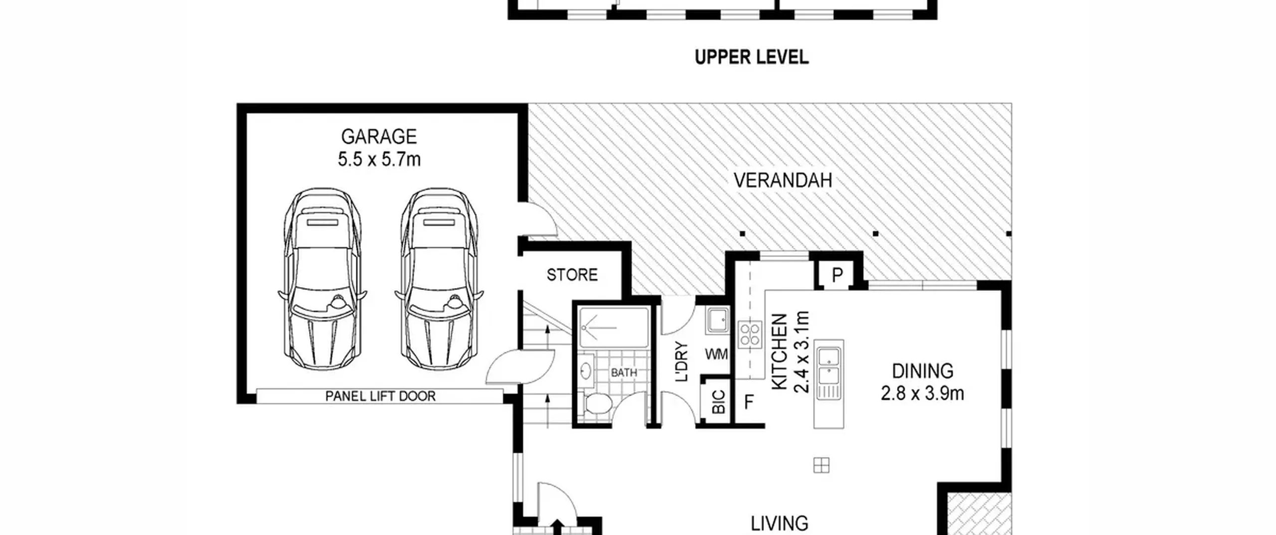
Lower level comprising of:
- Spacious, light filled open plan living area
- Stylish kitchen with gas cooktop, ample cupboard space and island bench
- Dining area adjacent kitchen
- Valuable third bathroom with floor-to-ceiling tiles
- Separate laundry
- Additional storage space
- High ceilings throughout
- Ducted reverse cycle air conditioning throughout
- Large verandah, perfect for outdoor entertaining
- Secure, low maintenance rear yard
- Remote controlled double garage with panel lift door and direct internal entry
- Insulated verandah ceiling
- Concrete aggregate driveway
- Security system
Perfectly located less than 6km (approximately) to the CBD and within easy walking distance to Marden shopping centre. Nearby to quality schools including St Joseph’s and zoned for Trinity Gardens Primary School. Public transport and recreational facilities such as Payneham playground are also close by and all the restaurants and cafes of Norwood Parade and Payneham Road are only a short distance away.
For further information please contact Graeme Brown on 0455 111 791 or 8269 7711 (office).
RLA 200591
The Vendor's Statement (Form 1), the Auction Contract and the Conditions of Sale will be available for perusal by members of the public -
(A) at our office located at 87 North East Road, Collinswood for at least 3 consecutive business days immediately preceding the auction; and
(B) at the place at which the auction is to be conducted for at least 30 minutes immediately before the auction commences.
