Prepare to be Impressed!
Sit back relax and entertain in this spotlessly presented and beautifully renovated home. Situated on a generous block of approximately 600sqm this will appeal to families, first home buyers and investors alike. Boasting large living areas and an external rumpus room, there is plenty of space for all the family to live and play.
Features that make this home special:
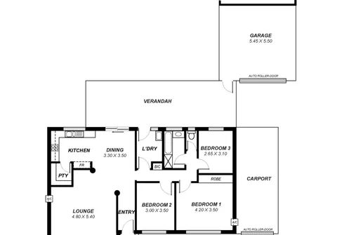
- Large master bedroom with built-in robe and split system air conditioner
- Good sized bedrooms 2 and 3
- Light filled lounge room with split system air conditioner
- Modern kitchen with walk-in pantry, filter tap, gas cooktop, stainless steel appliances and ample bench and cupboard space
- Dining area adjacent kitchen
- Updated bathroom with full height tiling, separate bath and shower + separate w/c
- Separate laundry with full height tiling
- Added bonus of rumpus room/home office to rear
- Polished floor tiles to main living areas and carpet to bedrooms
- Roller shutters to front windows
- Secure fully fenced rear yard
- Low maintenance front and rear yards
- Generous paved undercover outdoor entertaining area
- Drive through carport with room for 2 vehicles and automatic roller door
- Lock up garage/workshop with automatic roller door
Sitting on a generous allotment and in a prime position merely minutes away from the best amenities Paralowie has to offer. Hollywood Plaza and Paralowie Plaza shopping centres with Woolworths supermarket, medical centre, pharmacy, bakery and other speciality shops. Close to transport options and quality schooling.
For further information please contact Mark Fricker on 0413 000 845 or James Rawkins on 0408 081 826.
RLA 265613
