Open Inspections Cancelled for 22nd & 23rd October - Modern Family Living on Full Size Allotment Opposite Reserve!
Current Rental Appraisal: Approximately $440 - $470 per week.
Astute buyers will adore this family property in the popular suburb of Paralowie, perfectly positioned opposite an expansive reserve.
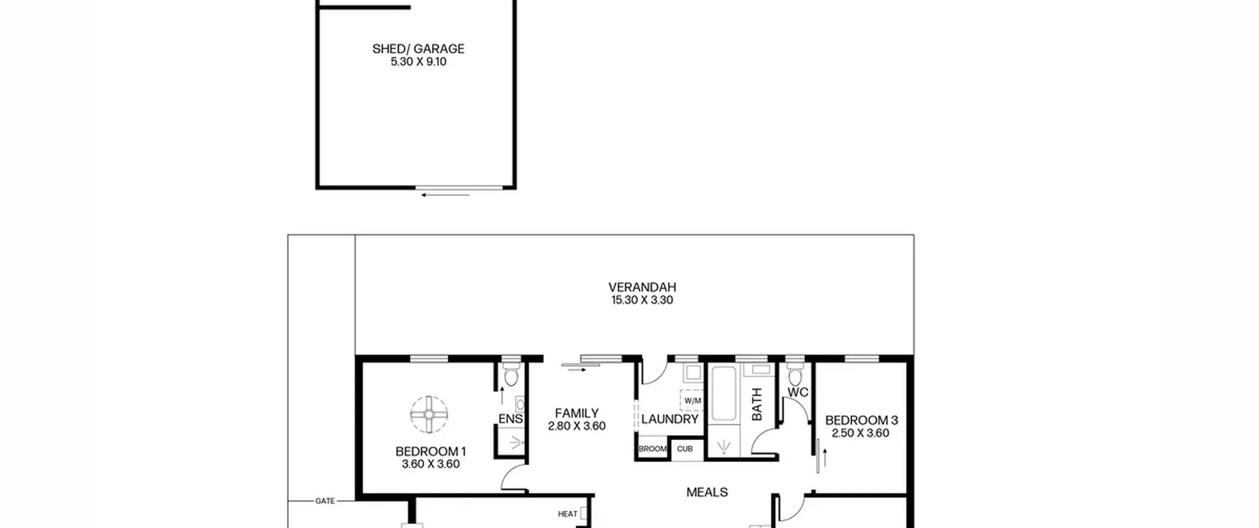
The floor plan consists of three-bedrooms, two living spaces and two bathrooms and has been designed for modern family living with plenty of space for you to take advantage of. The stylishly renovated kitchen and meals area is sure to be the hub of everyday living while the home cook will admire the ample cupboard and bench space. From here, you can move to the cosy lounge or the rear family area that flows effortlessly to the outdoor entertaining verandah.
The master bedroom features a convenient private ensuite while bedrooms two and three are of good size and are serviced by the centrally located main bathroom. Completing this layout of utmost convenience is a separate laundry with external access, carport, large shed storage and a fully fenced backyard. Every part of this home provides the ultimate blend of functionality, comfort and space. There is nothing left to do, but simply move in, relax and enjoy!
Features that make this home special:
- Large 675sqm (with 18.75m frontage (approximate)
- Main bedroom complete with ceiling fan and ensuite
- Bedrooms two and three of good size; bedroom two offering a ceiling fan and built-in robe
- Raised ceilings in living areas providing a wonderful sense of space
- Light filled lounge upon entry
- Family room with access to the verandah entertaining area
- Meals area adjacent kitchen
- Stylish kitchen featuring ample cupboard and bench space plus quality appliances and dishwasher
- Modern main bathroom with bath and separate shower
- Separate toilet
- Practical laundry with broom cupboard and external access
- Large verandah entertaining area
- Fully fenced backyard with additional pergola entertaining area at the rear
- Sizeable shed, perfect for your DIY projects
- Garden shed and rainwater tank
- Carport providing secure parking
Located in close proximity to parks, reserves, early learning centres and a variety of schools including Goodstart Early Learning, Temple Christian College, Thomas More College and Paralowie R-12. Shopping centres including Hollywood Plaza and Parabanks Shopping Centre are both nearby. All of this and easy access to the Northern Expressway!
For further information contact Gabriel Titmarsh on 0497 191 000, Leisa Da Silva on 0488 222 882 or 8269 7711 (office).
All information provided has been obtained from sources we believe to be accurate, however, we cannot provide any guarantee and we accept no liability for any errors or omissions (including but not limited to a property's land size, floor plans and size, building age and condition). Interested parties should make their own inquiries and obtain their own legal advice.
RLA 313174
