Opportunity Awaits in This Prime Locale
Built circa 1972, this well-kept residence sits proudly on a generous 724sqm (approximate) allotment with a wide 18.2 (approximate) frontage, all within close proximity to the convenient Golding Oval.
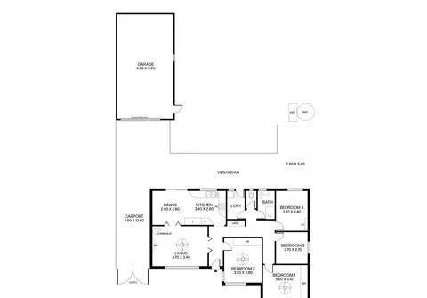
Enter through the welcoming entryway and into the warm, inviting lounge – an ideal space for creating cherished moments with loved ones. The home features a neat, open-plan kitchen and dining area, seamlessly connecting to the expansive undercover verandah – perfect for hosting family and friends. Beyond, a generous lawn offers plenty of space for children and pets to play and explore.
Whether you’re in the market for a quality first home, a spacious and comfortable family residence to grow into or a solid investment property with great potential, this well-maintained home offers everything you need and more — all on an easement-free allotment, giving you full use and flexibility of the land.
Features that make this home special:
- Bedrooms one and two are generously sized, each featuring built-in robes
- Bedrooms three and four positioned to the rear, with a split system air-conditioner in bedroom four
- Kitchen adjoining the dining room, complete with a gas cooktop, oven and ample storage
- Dining room seamlessly extending to the outdoor verandah
- Spacious living area equipped with a ceiling fan, split system air-conditioner and heater
- Central bathroom featuring an oversized shower, vanity and a separate toilet for added convenience
- Well-appointed laundry with direct external access
- Expansive wraparound verandah, ideal for year-round entertaining
- Large rear yard with a generous lawn area
- Triple-length carport with gates
- Secure double-length garage with pedestrian access
- Garden / tool shed
- Four rain water tanks
- Rental potential of $620 to $650 (approximately) per week
This conveniently located home is just a short drive from Ingle Farm Plaza and within easy reach of several reputable schools, including East Para Primary, Para Vista Primary and Good Shepherd Lutheran School. For all your shopping and entertainment needs, Tea Tree Plaza is only approximately 3.6km (approximately) away, offering a wide variety of retail stores, dining options and leisure activities to enjoy.
All information contained herewith, including but not limited to the general property description, price and the address, is provided to Boffo Real Estate by third parties. We have obtained this information from sources we believe to be reliable; however, we have not verified and do not guarantee its accuracy. The information contained herewith should not be relied upon and you should make your own enquiries and seek advice in respect of this property or any property on this website.
The Vendor's Statement (Form 1), the Auction Contract and the Conditions of Sale will be available for perusal by members of the public - (A) at our office located at 78-80 North East Road, Walkerville for at least 3 consecutive business days immediately preceding the auction; and (B) at the place at which the auction is to be conducted for at least 30 minutes immediately before the auction commences.
Looking to purchase this property as an investment? Speak to our Property Management team to see how we can assist.
RLA 313174
