Sit Back, Relax and Enjoy!
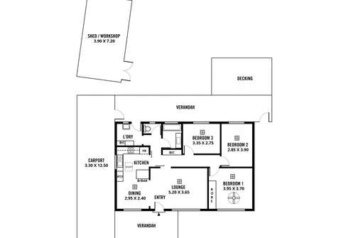
This beautifully presented 3 bedroom home boasts natural light filled rooms, a stylish kitchen and bathroom, large decked verandah and expansive rear yard. Providing enough space to entertain at home with family and friends. Situated on a generous 612sqm (approximate) block with a wide 20.4m (approximate) frontage this home is sure to appeal to couples, families or the savvy investor looking to add to their portfolio.
Features that make this home special:
- Master bedroom with ceiling fan and built-in robe
- Good sized bedrooms 2 and 3
- Light filled lounge which overlooks the gorgeous front garden
- Modern kitchen with dishwasher, gas cooktop, breakfast bar and ample bench and cupboard space
- Dining area adjacent kitchen
- Glistening bathroom with separate toilet
- Linen cupboard
- Separate laundry with built-in cupboard and access to rear yard
- Ducted air conditioning throughout
- Ducted gas heating throughout
- Large verandah and decking area, ideal for outdoor entertaining
- Manicured front and rear yard with plenty of room for the kids or pets to play
- Shed/workshop, garden shed and rainwater tank in rear yard
- Double length carport with access to rear yard
Surrounded by parks and reserves and located close to a variety of childcare centres and schools including Valley View Secondary School, Para Vista Primary School and Good Shepherd Lutheran School. Within easy walking distance to Clovercrest Village shops, restaurants and a variety of public transport options. Only a short drive to all the shopping and entertainment that Tea Tree Plaza has to offer. All this and 15kms (approximately) to the Adelaide CBD.
For further information please contact Mark Fricker on 0413 000 845 or 8269 7711 (office).
RLA 200591
