Fantastic Family Home Set on a Huge Block
This spacious home in a great location was designed for families that need their own space. Utilising its practical layout all the family can enjoy their own separate areas. Perfect to move in straight away and enjoy, with the option to upgrade to your own taste later. Set on a massive 1,227sqm (approximate) allotment at the end of a quiet cul-de-sac, this opportunity is not to be missed!
Features that make this home special:
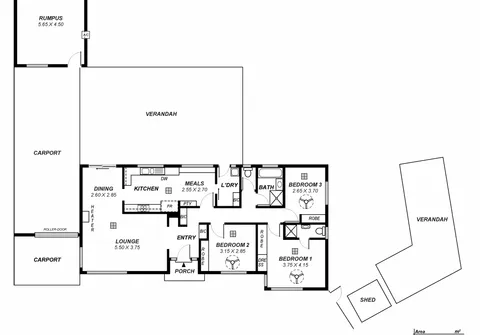
- Large master bedroom with beautiful polished floorboards, ceiling fan, built-in robe and ensuite
- Generous sized bedrooms 2 and 3, both with ceiling fan and built-in robe
- Spacious light filled lounge with heater
- Updated, stylish kitchen with gas cooktop, ample bench and cupboard space and eat-in meals area
- Dining room adjacent kitchen
- Neat and tidy main bathroom with separate bath and shower + separate toilet
- Separate laundry with ample storage space
- Ducted reverse cycle air conditioning throughout
- Massive verandah, perfect for outdoor entertaining
- Detached rumpus room or bedroom 4 with air conditioner, ideal for a teenager’s retreat
- Huge fully fenced, secure rear yard with fruit trees
- Enormous bitumen yard with enough space to add a pool or tennis court, or ideal workshop space
- Double carport with roller door
- Ample space for additional off-street parking
- Roller shutters to front windows
Surrounded by parks and reserves and located close to a variety of childcare centres and schools including Para Vista Primary School, Good Shepherd Lutheran School and Valley View Secondary School. Within easy walking distance to Clovercrest Village shops, restaurants and a variety of public transport options. Only a short drive to all the shopping and entertainment that Tea Tree Plaza has to offer. All this and 15kms (approximately) to the Adelaide CBD.
For further information please contact Steve Flynn on 0417 876 879 or 8269 7711 (office).
RLA 200591
