Neatly Renovated with Reserve Frontage!
Welcome to 3 Coorong Crescent, a beautifully renovated home that has been meticulously maintained throughout the years. Situated in the most sought after pocket of Para Hills West, you'll enjoy the quiet surroundings facing a council reserve on the opposite side of the street as well as being a stone's throw from the local school.
A home that offers the ability to store additional vehicles securely or utilise the fully lined external rumpus as an office or teenage retreat and combined with low maintenance modern living.
Set on a 595sqm (approximate) allotment and incorporating beautiful modern and original features, the home offers a refreshing ambience and will appeal to first home buyers, young families or downsizers who want to enjoy this convenient location.
Move in ready with all the hard work completed, all that is left for you to do is come along to the open inspections and register your interest. You won't want to miss out on this home!
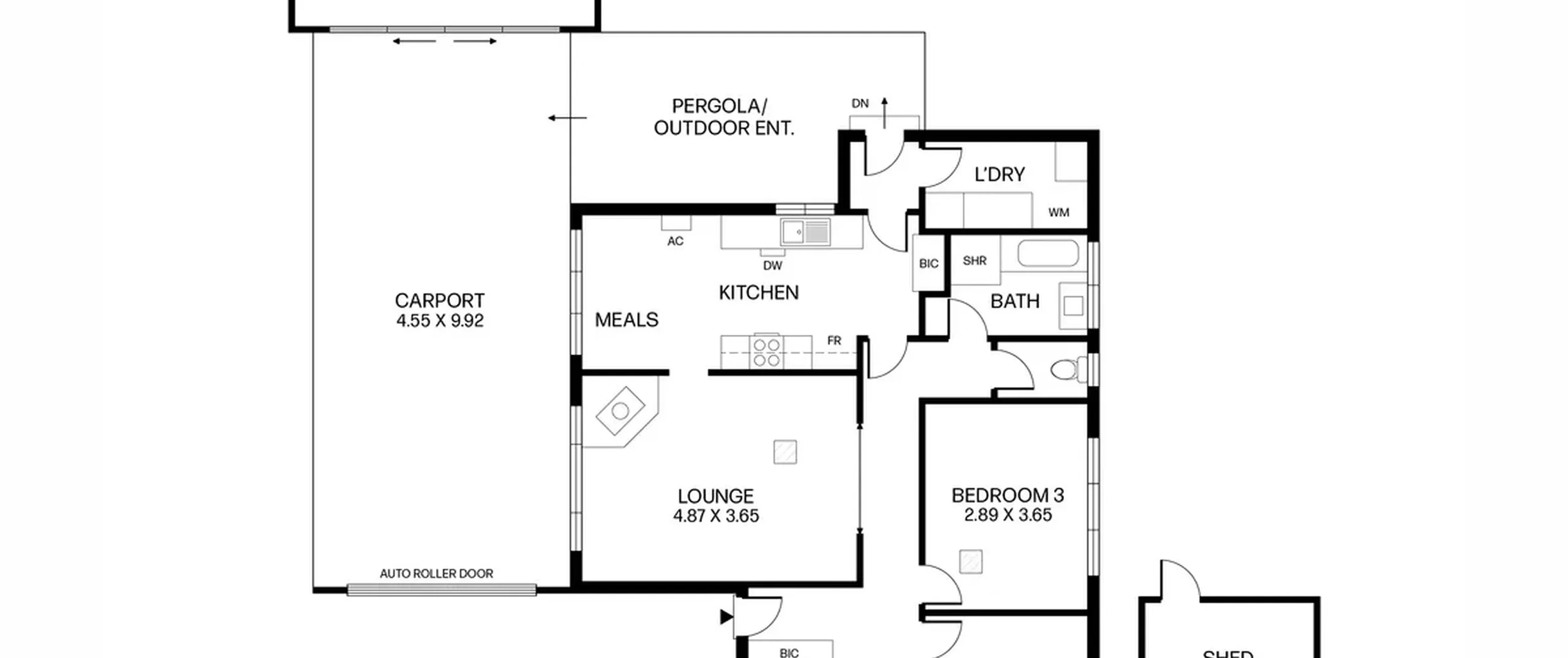
Features that make this home special:
- Light filled bedroom 1 with built-in robe
- Good sized bedrooms 2 and 3
- Spacious lounge complete with wood combustion heater
- Meals area adjacent kitchen
- Stylish kitchen featuring ample cupboard and bench space and stainless steel appliances including gas cooktop and dishwasher
- Modern main bathroom with floor to ceiling tiles, bath, separate shower and separate toilet
- Practical laundry with built-in joinery
- Ducted evaporative cooling
- Pergola entertaining area
- Fully fenced, established yard with 2x garden sheds and wood shed
- External rumpus room/studio
- Double length carport with automatic roller door and drive through access
- Roller shutters
- 20.3m frontage (approximate)
- 1970’s built home
- Rental appraisal available on request
Located in close proximity to parks, reserves and a variety of excellent public and private schools. Only a short drive to all the entertainment and shopping that Tea Tree Plaza has to offer. Public transport options including The O-Bahn to the Adelaide CBD are also nearby.
For further information please contact Jayden Kirk on 0448 225 517, Graeme Brown on 0455 111 791 or 8269 7711 (office).
RLA 200591
The Vendor's Statement (Form 1), the Auction Contract and the Conditions of Sale will be available for perusal by members of the public -
(A) at our office located at 87 North East Road, Collinswood for at least 3 consecutive business days immediately preceding the auction; and
(B) at the place at which the auction is to be conducted for at least 30 minutes immediately before the auction commences.
