PRICE REDUCTION! Sit Back, Relax and Entertain!
Set on the high side of the road, you are welcomed into in this beautifully updated Cape Cod family home. Offering plenty of space for the growing family to live and play.
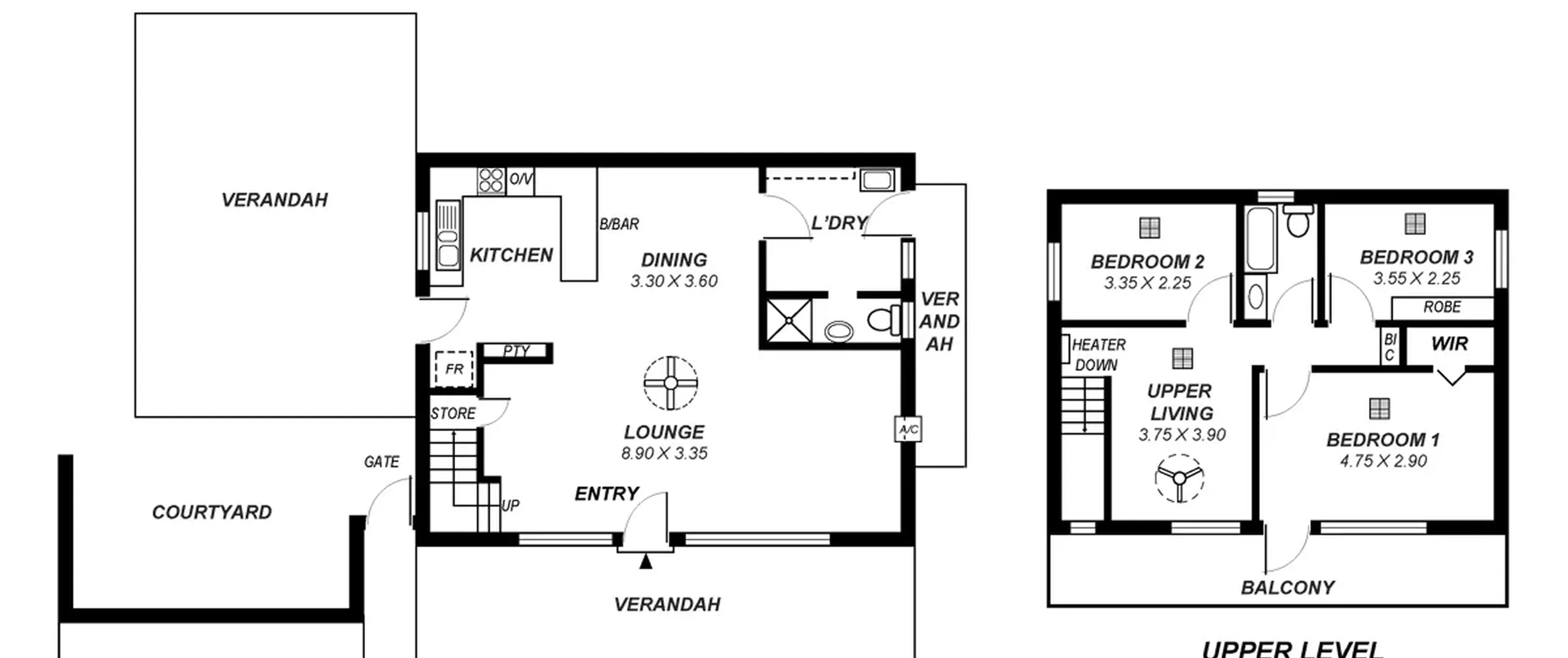
Features that make this home special;
- Master bedroom with walk-in robe and access to the balcony
- Good size bedroom 2 and 3 with built-in robe to bedroom 3
- Recently updated main bathroom upstairs
- Open plan living downstairs, with exposed ceiling beams
- Two spacious living areas with ceiling fans
- Tidy light filled kitchen
- Ample storage space under the staircase
- Valuable second bathroom located downstairs
- Separate laundry
- Ducted reverse cycle air-conditioner upstairs
- Wall mounted reverse cycle split system downstairs
- Fantastic outdoor entertaining area
- Double lockup garage with pit for the motoring enthusiast
In close proximity to local shops, public transport, schools, parks and Para Hills Tennis Club. Making this the perfect place to call home for your growing family.
For further information please contact Matthew Puopolo on 0455 800 848 or 8269 7711 (office).
RLA 265613
