An Entertainers Dream! The perfect place to host family & friends with Spacious Living & Picturesque Pool & Spa!
This beautifully presented and updated family entertainer is positioned on an expansive 1089sqm (approximate) block and provides ample space for the whole family. Desirably located a short walk from several reserves, playgrounds and waterways for the family to enjoy a nature filled escape.
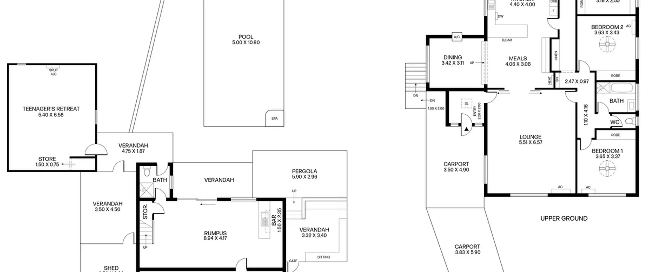
Providing four bedrooms, a generous lounge room that flows effortlessly into the expansive kitchen and dining area, complemented by new paint and flooring throughout. Sit back and relax on the decked balcony and enjoy superb views, overlooking the rear yard, pool and spa. A valuable addition to this home is the rumpus room located on the lower ground featuring a bar and bathroom, perfect to use as a games room when hosting family or friends.
Step outside and discover the ultimate entertainer's haven, complete with multiple undercover entertaining areas that overlooks the inground swimming pool and spa. Offering a refreshing oasis for hot summer days and provides the perfect backdrop for relaxing outdoor living with the added bonus of a detached teenagers retreat.
Features that make this home special:
- 8.2kw Solar System
- Four bedrooms all complete with built-in robes
- Bedrooms one, two and three with ceiling fans and bedrooms one and two with split system air conditioners
- Spacious formal lounge with split system air conditioner
- Large kitchen with breakfast bar, ample bench and cupboard space, stainless steel appliances including oven, gas cooktop and dishwasher
- Meals area adjacent kitchen with heater
- Formal dining room with air conditioner
- Modern main bathroom with separate bath and shower + separate toilet for convenience
- Utility room
- Separate laundry
- Lower ground rumpus room with bar and bathroom with shower and toilet
- Additional teenagers retreat with split system air conditioner
- Lawn area, perfect for the kids and pets to enjoy
- Pergola overlooking expansive in-ground pool
- Verandah, perfect for outdoor entertaining
- Pool shed
- Garden shed
- Tool shed
- Double length carport with additional parking in driveway
Superbly located only minutes away from all the shopping and entertainment that Westfield Tea Tree Plaza has to offer. In close proximity to a variety of excellent schools, including The Heights and East Para Primary. Easy access to the CBD via the O'Bahn at Tea Tree Plaza Interchange or simply walk to the bus stop just 350m (approximately) away. Additionally, within walking distance to multiple reserves.
All information contained herewith, including but not limited to the general property description, price and the address, is provided to Boffo Real Estate by third parties. We have obtained this information from sources we believe to be reliable; however, we have not verified and do not guarantee its accuracy. The information contained herewith should not be relied upon and you should make your own enquiries and seek advice in respect of this property or any property on this website.
The Vendor's Statement (Form 1), the Auction Contract and the Conditions of Sale will be available for perusal by members of the public - (A) at our office located at 78-80 North East Road, Walkerville for at least 3 consecutive business days immediately preceding the auction; and (B) at the place at which the auction is to be conducted for at least 30 minutes immediately before the auction commences.
RLA 313174
