Endless Opportunities on this Generous 696sqm Block!
Currently standing on a generous 696sqm (approximate) allotment is this large three-bedroom, one bathroom home. With vast potential (subject to planning consents) and opportunities to subdivide and build two homes, demolish and build your dream home (subject to planning consents) or with a little TLC give the current home a makeover and add your own personal flair throughout!
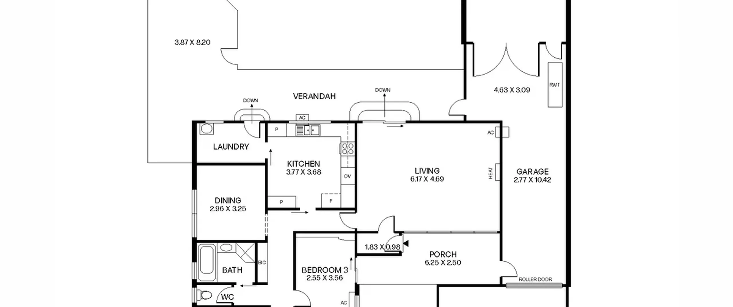
Inside, you will find three good sized bedrooms with built-in robes, both serviced by a well-equipped main bathroom with separate shower and bath. Multiple living spaces add versatility to the floorplan and provide room to adapt with you as you grow. A large kitchen with ample cupboard space and gas cooktop completes the interior of the home.
Outside, you will love the sunny, grassed area and verandah with blinds providing the ideal space for entertaining friends and family all year round. With multiple garden sheds a workshop and garage, with secure undercover parking as well as a large driveway to accommodate for additional off-street parking or the perfect place to store your boat, caravan, or trailer.
Quietly located in the heart of the north-east and with vast potential to transform when you are ready, this is a property worth seeing.
Features that make this home special:
- Spacious bedroom 1 with air conditioner built-in robe + ample built-in cupboard space
- Good sized bedroom 2 with built in robe
- Third bedroom with built-in cupboard, built-in shelving, air conditioner and direct external access
- Generous living room with heater and air conditioner for year-round comfort
- Original kitchen with gas cooktop, pantry and abundance of cupboard space throughout
- Formal dining room
- Neat and tidy bathroom with bathtub and shower + separate toilet and linen storage for added convenience
- Large laundry with external access
- Large undercover and enclosed verandah, perfect for outdoor entertaining while kids and pets play in the backyard
- Expansive rear yard with plenty of space for the green thumb
- Large double garage and workshop at rear of the property with interior access to the home
- Triple length carport with gates + driveway space for off-street parkway
- Tool shed
For further information please contact John Ktoris on 0438 945 704 or 8269 7711 (office). All information provided has been obtained from sources we believe to be accurate, however, we cannot provide any guarantee and we accept no liability for any errors or omissions (including but not limited to a property's land size, floor plans and size, building age and condition). Interested parties should make their own inquiries and obtain their own legal advice.
RLA 313174
