A Prime Opportunity Awaits!
Set behind a modest exterior is this spacious and charming abode perfectly suited to first-time buyers, young families and investors alike. Situated on a large block, the new owners of this home will enjoy the unlimited potential this property has to offer.
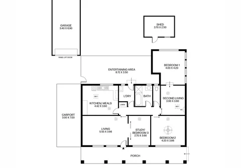
Step inside to discover the flexible floorplan which includes three bedrooms/study, two living spaces and a great-sized kitchen. This home includes new carpets, fresh paint and landscaped gardens so you can move in and enjoy as-is.
Adding to the appeal of this versatile property is the 710sqm (approximately) land size with an 18.2m (approximately) frontage, meaning opportunities to subdivide, build or extend are endless (Subject to Council Consent). Extra features abound and include a large rear yard, garage and two sheds for the budding gardener. Conveniently located within five minutes walk of local shops, post office, medical clinic, library, schools and public transport making this a perfect home for those seeking a convenient lifestyle with character charm.
Features that make this home special:
- Large master bedroom set at rear of home
- Bedroom 2 of good size complete with ceiling fan
- Bedroom 3 or option to use as study/home office
- Light-filled and large living room upon entry with gas heater
- Second living room with skylight
- Spacious kitchen and dining room with skylight and ample cupboard and bench space
- Practical bathroom with shower and separate bathtub
- Separate toilet for convenience
- Laundry of good size with access to rear
- Ducted evaporative and refrigerated cooling
- Oversized undercover outdoor entertaining area, a perfect space to enjoy with family and friends
- Roller shutters to all external windows for increased security and privacy
- NBN fibre to the premise connection available
- Two garden sheds
- Irrigated gardens
- Linen cupboard for additional storage
- Large garage with a panel lift door, perfect for additional storage or the car enthusiast
- Carport with drive through access and space for multiple cars, a boat or trailer
Ideally located within close proximity to a variety of schools, parks and public transport options. Only a short drive to all the shopping and entertainment that Tea Tree Plaza has to offer. All of this and the added bonus of the Adelaide CBD just 15kms (approximately) away.
For further information please contact Fadi Oudih on 0455 999 007, Paul Leombruno on 0439 160 161 or 8269 7711 (office).
RLA 200591
The Vendor's Statement (Form 1), the Auction Contract and the Conditions of Sale will be available for perusal by members of the public -
(A) at our office located at 78-80 North East Road, Walkerville SA 5081 for at least 3 consecutive business days immediately preceding the auction; and
(B) at the place at which the auction is to be conducted for at least 30 minutes immediately before the auction commences.
