Substantial Corner Block of 850sqm (approx) in Prosperous Para Hills!
A property of unlimited potential thanks to the enviable corner block location and close proximity to schools, shops, parks and public transport links. Subject to council approval, you may wish to develop the site and utilise the corner block location with over 27m (approximate) of street frontage facing Williamson Road!
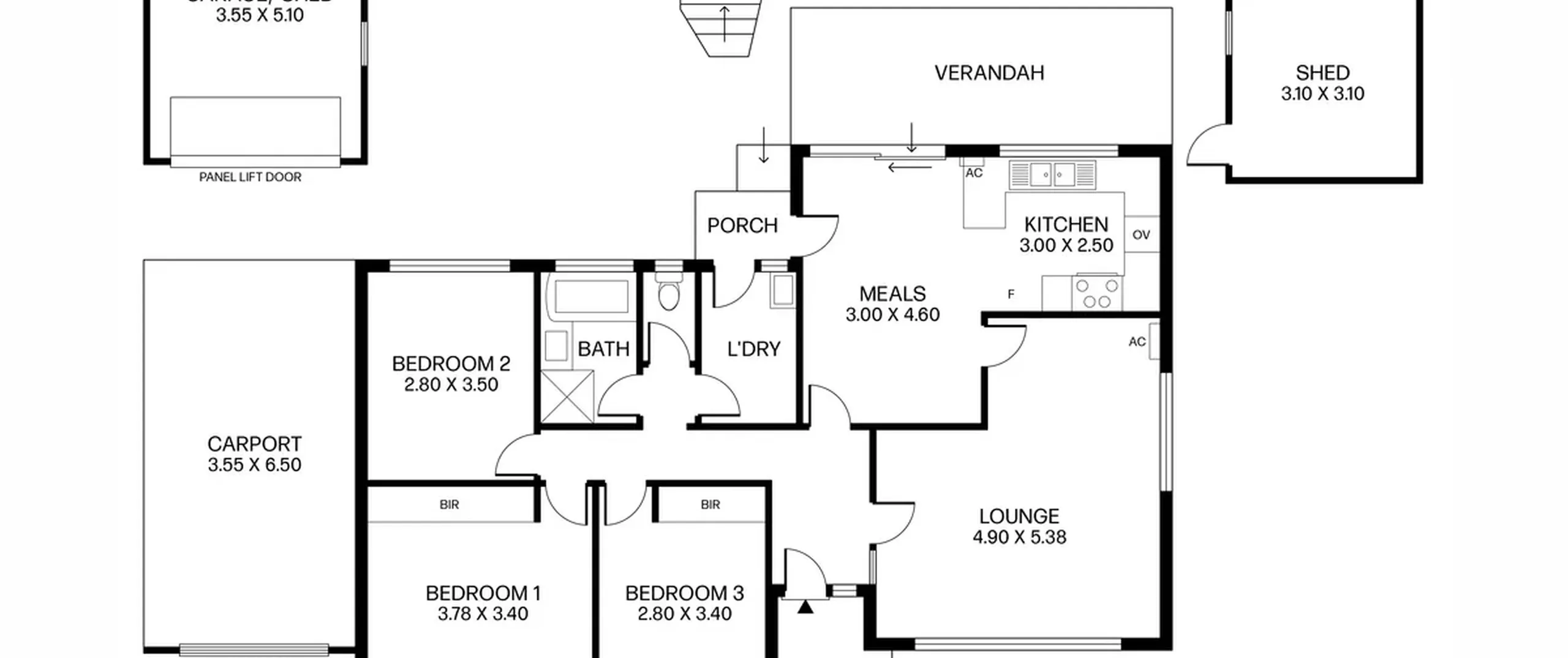
Currently, the allotment features an original three bedroom, one bathroom home. The kitchen is well-equipped with plenty of bench and storage space. A large lounge and eat-in kitchen/dining area provide ample room.
The home could be renovated (Subject to Council Consent) to suit your needs or leased out should you be looking for a longer term investment property.
Ideally located within close proximity to a variety of schools, parks and public transport options. Only a short drive to all the shopping and entertainment that Tea Tree Plaza has to offer. All of this and the added bonus of the Adelaide CBD just 15kms (approximately) away.
Don’t miss out on this one! Opportunities like this don’t come up every day!
For further information please contact Gabriel Titmarsh on 0497 181 000 or 8269 7711 (office).
RLA 200591
The Vendor's Statement (Form 1), the Auction Contract and the Conditions of Sale will be available for perusal by members of the public -
(A) at our office located at 87 North East Road, Collinswood for at least 3 consecutive business days immediately preceding the auction; and
(B) at the place at which the auction is to be conducted for at least 30 minutes immediately before the auction commences.
