Family Home on a Large Allotment with Endless Potential!
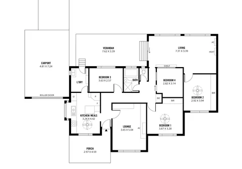
Prime opportunity to secure this 4 bedroom home situated on a large 760sqm (approximate) block with a wide 22.3m (approximate) frontage, perfectly positioned within walking distance to Para Hills Shopping Centre, Baden Park and Para Hills School P-7. Featuring multiple living areas to accommodate the whole family, plenty of natural light and polished floorboards throughout. This home offers the new owner a golden opportunity to renovate and add value, restore and rent out, redevelop/subdivide and renew: the choice is yours (all subject to council consent)!
Features that make this home special:
- 4 good sized bedrooms, bedrooms 1 and 2 with ceiling fans and built-in robes
- Formal lounge room with split system air conditioner
- Spacious family room with wall unit air conditioner and gas heater
- Tasmanian oak kitchen with meals area, ceiling fan, gas cooktop and ample cupboard space
- Main bathroom with separate bath and shower + separate toilet
- Separate laundry with access to the rear yard
- Verandah, perfect for outdoor entertaining
- Fully fenced, secure rear yard with shed/workshop
- Single carport with automatic roller door and drive through access to shed
Ideally located within close proximity to a variety of schools, parks and public transport options. Only minutes away from all the shopping and entertainment that the new refurbished Tea Tree Plaza has to offer. All this and the added bonus of the Adelaide CBD just 14kms (approximately) away.
For further information please contact Gabriel Titmarsh on 0497 191 000 or 8269 7711 (office)
RLA 200591
