A Treasure Chest of Surprises!
On offer is this renovated double brick home situated on a generous 582sqm (approximate) allotment with a wide 16.5m frontage (approximately) in the popular suburb of Para Hills. Multiple living areas and generous proportions throughout provide an abundance of space that you will want to share with the whole family.
Offering the perfect lifestyle with many great amenities close by, this home is sure to impress families and first home buyers looking to get into the market and investors looking to add to their current portfolio. There is nothing to do but move in and start enjoying the lifestyle this property offers!
Features that make this home special:
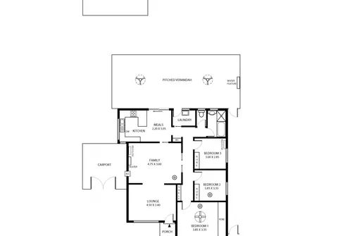
- Large master bedroom with ceiling fan and built-in robe
- Good sized bedrooms 2 with ceiling fan
- Good sized bedroom 3with built-in robes, and bedroom 3 with split system air conditioner
- Brand new carpets to all bedrooms
- Light filled lounge with polished timber floorboards
- Spacious family room with split-system air conditioner
- Updated kitchen with stainless steel appliances, gas cooktop, dishwasher and ample bench space
- Meals area adjacent kitchen
- Updated bathroom with separate toilet
- Separate laundry
- Ample additional storage throughout
- Huge pitched-roof verandah with ceiling fans and water feature, ideal for outdoor entertaining
- Secure rear yard with kid’s cubby house and manicured gardens
- Secure electric gate to the paved front yard
- Large garage/workshop
- Additional carport plus off street parking for up to 6 vehicles
- 5.5kw Solar electrical system with 24 panels for energy efficiency
- NBN connected
- Roller shutters to front windows
- Security system (disconnected)
Ideally located within close proximity to Ingle Farm Shopping Centre, a variety of schools, parks and public transport options. Only minutes away from all the shopping and entertainment that the new refurbished Tea Tree Plaza has to offer. All this and the added bonus of the Adelaide CBD just 14kms (approximately) away.
For further information please contact Annamaria Varelias on 0487 487 383 or 8269 7711 (office).
RLA 200591
