Family Living with Space, Comfort and Lakeside Appeal
Positioned just footsteps from the lake, this home enjoys a desirable Oakden setting on a large corner block. With an attractive facade featuring rendered coinwork, it offers charming street appeal that sets the tone for what lies within.
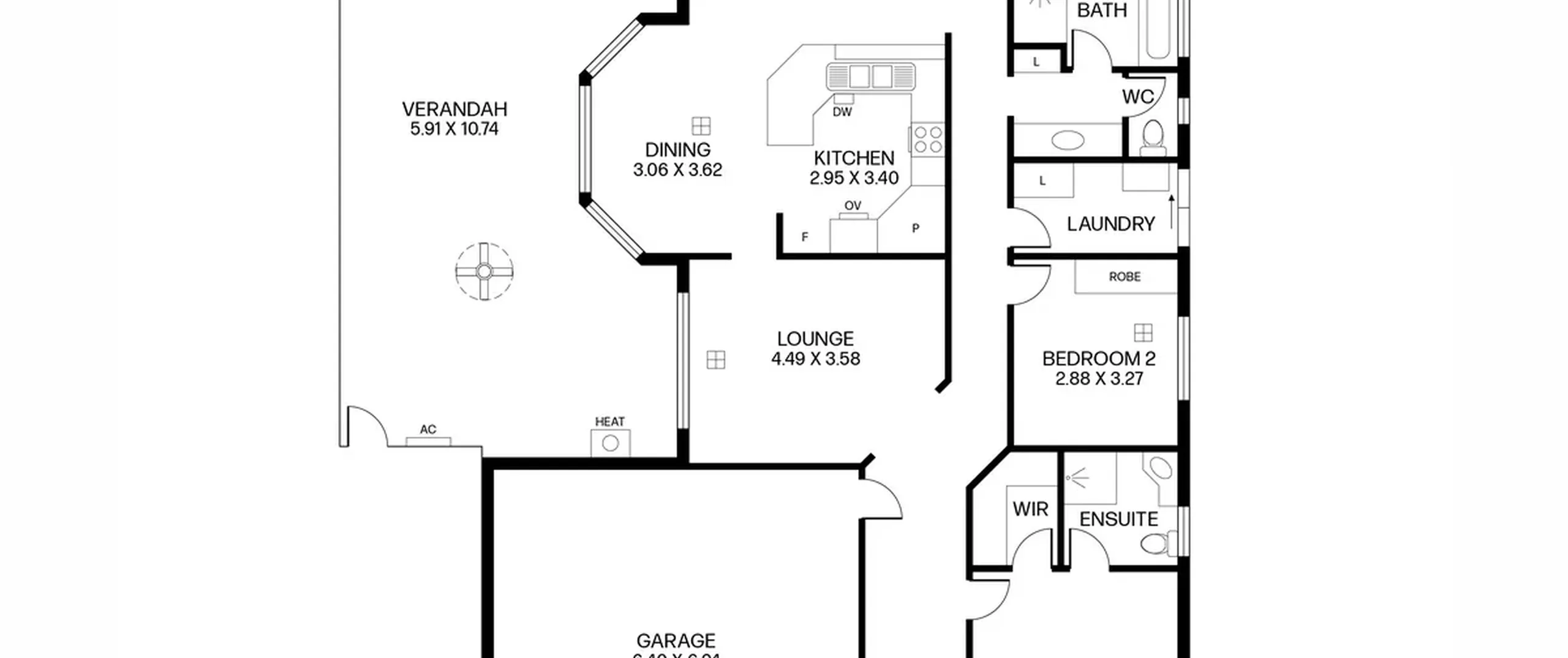
Two living rooms provide flexibility for both relaxation and entertaining, while ducted reverse cycle air conditioning ensures year-round comfort. Electric roller shutters to the master bedroom, family and rear living areas add peace of mind and privacy.
The well-appointed kitchen features stainless steel appliances, a dishwasher and abundant storage, catering perfectly for family meals and gatherings. A seamless flow connects to the outdoor spaces, encouraging both everyday living and entertaining.
Outdoors, a fantastic, patterned concrete entertaining area beneath a gable roof pergola is the perfect setting for weekend barbecues. Complete with split system air conditioning and a wood fire heater, this is an ideal spot year round.
Features that make this home special:
- Footsteps from the lake
- Generous corner allotment
- Striking facade with mass street appeal
- Two separate living rooms
- Ducted reverse cycle air conditioning
- Electric roller shutters for comfort and security
- Spacious kitchen with stainless steel appliances and dishwasher
- Large outdoor entertaining with patterned concrete and pergola
- Double garage with secure parking
- Patterned concrete driveway
- Garden shed
- 491 sqm land (approximately)
Conveniently located just minutes from a range of shopping destinations including Gilles Plains, Greenacres and Lightsview Shopping Centres, this home offers everyday ease and accessibility. Families will appreciate the close proximity to quality schooling options such as Cedar College, Avenues College and St Paul’s College. Commuting to the city is a breeze with the O-Bahn Paradise Interchange just moments away, providing direct and efficient access to the CBD. Positioned 12.5km (approximately) from Adelaide’s city centre and only 5.6km (approximately) from the vibrant shopping, dining and entertainment hub of Westfield Tea Tree Plaza, this location truly combines suburban comfort with urban convenience.
