Spacious Living on a Prime Corner Block!
Superbly located in in the heart of the highly sought after and family orientated suburb of Oakden is this beautifully maintained Torrens Titled home, set on a manicured 326sqm (approximate) corner block.
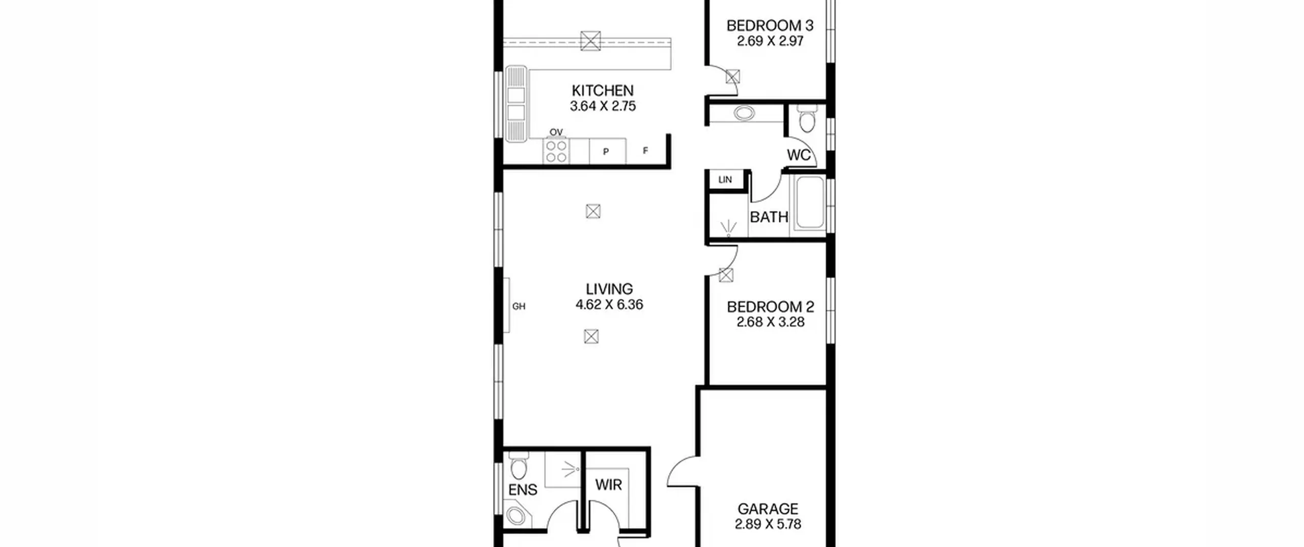
Providing a large separate lounge room that has a seamless flow to the light filled, open plan dining and kitchen area. Step outside to the low maintenance and manicured rear yard featuring a verandah for undercover outdoor entertaining.
Providing an outstanding lifestyle with numerous excellent amenities nearby, including the picturesque Roy Amer Reserve featuring a lake, BBQ area and playground just a stone's throw away for the whole family to relish.
Whether you are seeking a quality first home, a family abode close to outstanding local amenities, or looking for an investment property, then this comfortable and spacious home could be the one for you.
Features that make this home special:
- Master bedroom with walk-in robe and ensuite
- Two additional bedrooms
- Large separate living room with Rinnai gas floor heater
- Kitchen overlooking dining area featuring a stainless-steel gas cook top and oven
- Three-way bathroom with separate bath and shower
- Laundry with direct rear yard access
- Ducted evaporative air-conditioning
- Verandah, perfect for outdoor entertaining
- Low maintenance front and rear yard
- Garden shed
- Rainwater tank
- Single garage with direct internal entry
Located only minutes away from all the shopping that Gilles Plains, Greenacres and Lightsview Shopping Centre’s have to offer. A variety of schools are in close proximity including Cedar College, Avenues College and St Paul's College. Within easy access to the city via the O-Bahn Paradise Interchange which is only minutes away. All of this and only 12.7km (approximately) to the Adelaide CBD and 5.6km (approximately) to all of the shopping and entertainment options that Tea Tree Plaza has to offer.
All information contained herewith, including but not limited to the general property description, price and the address, is provided to Boffo Real Estate by third parties. We have obtained this information from sources we believe to be reliable; however, we have not verified and do not guarantee its accuracy. The information contained should not be relied upon and you should make your own enquiries and seek advice in respect of this property or any property on this website.
Looking to purchase this property as an investment? Speak to our Property Management team to see how we can assist.
RLA 313174
