Chic Cul-de-Sac Haven: Effortless Living with Charm and Ease!
Nestled in a tranquil cul-de-sac location, nearby Bristol Reserve, this residence epitomizes effortless living with its low-maintenance appeal. Neatly presented, it showcases an abundance of delightful original features. Recently refreshed with a fresh coat of paint and new plush carpets, this home boasts a comfortable ambiance enhanced by convenience.
The open-plan living space seamlessly connects the living, dining, and kitchen areas, offering not only practicality but also creating a welcoming atmosphere. The timeless kitchen overlooks the entire space, providing a perfect setting for family gatherings and everyday living.
Step outside to discover a generously sized entertaining area, complete with a covered verandah, perfect for hosting gatherings or simply unwinding in the serene surroundings. The landscaped rear yard adds a touch of nature to your outdoor space.
Featuring three bedrooms and two bathrooms, meticulously designed with low-maintenance living in mind, this home is perfect for downsizers and first-time buyers alike. Enjoy the convenience of a residence that not only meets your lifestyle needs but also offers a peaceful retreat in a sought-after Oakden location.
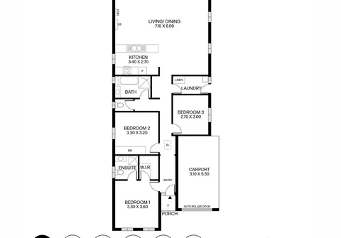
Features that make this home special:
- Master bedroom located at the front of the home complete with built- in robe and ensuite
- Bedrooms 2 and 3 of good size, bedroom 2 with built-in robe
- Light-filled family, meals, and lounge areas equipped with air conditioning and glass sliding doors connect these spaces to the verandah
- Charming kitchen offering gas cooktop and oven
- Neat and tidy main bathroom with separate toilet for added convenience
- Valuable laundry with direct external access
- Paved undercover verandah perfect for hosting family and friends
- Low-maintenance backyard featuring artificial grass and well-maintained rear gardens that are perfect for kids and pets to play
- Shed
- Single carport with automatic roller door and driveway offering off-street parking
Perfectly positioned a stone’s throw from Bristol Terrace Reserve as well as being located close by to the parks, café, walking trails and lakes of Roy Amer Reserve. Situated in close proximity to Northgate Shopping Centre and Gilles Plains Shopping Centre. Located nearby to a variety of schools including Cedar College and St Paul’s College. Convenient public transport options are also within easy reach (walking distance to O-Bahn buses). All this and only 9kms (approximately) to the Adelaide CBD.
All information contained herewith, including but not limited to the general property description, price and the address, is provided to Boffo Real Estate by third parties. We have obtained this information from sources we believe to be reliable; however, we have not verified and do not guarantee its accuracy. The information contained should not be relied upon and you should make your own enquiries and seek advice in respect of this property or any property on this website.
The Vendor's Statement (Form 1), the Auction Contract and the Conditions of Sale will be available for perusal by members of the public - (A) at our office located at 78-80 North East Road, Walkerville for at least 3 consecutive business days immediately preceding the auction; and (B) at the place at which the auction is to be conducted for at least 30 minutes immediately before the auction commences.
RLA 313174
