Low-maintenance Living Directly Opposite Woodland Reserve!
Peaceful, private and serene living awaits the lucky new owners of this idyllic family home nestled in a prized pocket of Oakden. It doesn’t get any better than this immaculate, well-loved home that is bursting with an unmatchable lifestyle that connects you to a host of delightful amenities including the popular Lakeside Café and scenic walking paths, parks and playgrounds.
Just as impressive as the sought-after location is the charming facade, flexible floor plan with multiple living areas paired with an abundance of natural light and a neutral colour scheme displaying exquisite modern-day elegance.
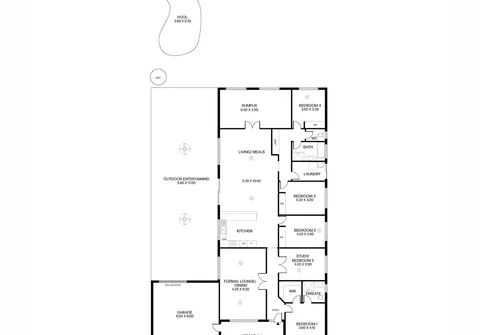
The thoughtfully designed layout is practical and family friendly, offering four bedrooms, a study which can we utilised as a fifth bedroom, two bathrooms and a double garage providing space for the whole family. Appealing to all, you are spoilt for choice with a divine open-plan kitchen, meals and family room where the large, timeless kitchen will delight the home chef, or you can escape to the charming formal lounge or rumpus room.
Truly a lifestyle home, the internal living spaces connect seamlessly through to the outdoor entertaining area surrounded by manicured gardens and a sparkling in-ground swimming pool, creating a perfect space to sit, relax and enjoy your morning coffee or fire up the BBQ and host your loved ones.
Whether you are seeking a quality first home, a family abode to live in within an in-demand area, wanting to downsize close to outstanding local amenities, or looking for an investment property, then this high-calibre home is the one for you!
Features that make this home special:
- Master bedroom complete with a walk-in robe and ensuite
- Bedrooms 2, 3 and 4, all complete with built-in robes
- Study with option to use as a 5th bedroom
- Spacious and elegant formal lounge room
- Immaculate kitchen equipped with dishwasher and gas cooktop, offering ample cupboard and bench space, including breakfast bar
- Large light-filled living and meals area with glass sliding doors opening to the outdoor entertaining area offering a seamless flow between indoor and outdoor living
- Additional rumpus room
- Sparkling main bathroom with separate bath and shower
- Separate toilet for added convenience
- Ducted air conditioning throughout
- Separate laundry with external access and linen storage to the hallway
- Expansive entertaining area with pitched roof pergola, surrounded by low-maintenance gardens, offering the perfect space to host guests
- Sparkling in-ground swimming pool with gazebo
- Well-manicured gardens with grass area for kids and pets to play
- Multiple rainwater tanks for water efficiency
- Double garage with automatic roller door, internal access and external access through additional roller door
- Landscaped front garden with double width driveway for off-street parking
- Currently tenanted for $565.00 per week until October 2023
Perfectly located close by to the parks, walking trails and lakes of Harry Wierda Reserve. Situated in close proximity to Northgate Shopping Centre and Gilles Plains Shopping Centre. Located nearby to a variety of private and public schools including Cedar College, St. Pauls College, Avenues College, Hillcrest Primary School and Wandana Primary School. Convenient public transport options are also within easy reach including the o-Bahn. All this and only 10kms (approximately) to the Adelaide CBD.
For further information please contact Fadi Oudih on 0455 999 007, Paul Leombruno on 0439 160 161 or 8269 7711 (office).
All information contained herewith, including but not limited to the general property description, price and the address, is provided to Boffo Real Estate by third parties. We have obtained this information from sources we believe to be reliable; however, we have not verified and do not guarantee its accuracy. The information contained should not be relied upon and you should make your own enquiries and seek advice in respect of this property or any property on this website.
The Vendor's Statement (Form 1), the Auction Contract and the Conditions of Sale will be available for perusal by members of the public - (A) at our office located at 78-80 North East Road, Walkerville for at least 3 consecutive business days immediately preceding the auction; and (B) at the place at which the auction is to be conducted for at least 30 minutes immediately before the auction commences.
RLA 313174
