Auction re-scheduled to Thursday March 18th at 5pm!
On offer is this super-sized double-storey home that both inside and outside offers everything you could need for the complete desirable lifestyle. A thoughtfully designed floor plan with a light-filled open plan living area, 4 bedrooms + additional study or 5th bedroom, large backyard and great outdoor entertaining area creates the family home you deserve in a location you will love. Set on a beautifully landscaped 480sqm (approximate) allotment with magnificent street presence, conveniently situated in a quiet cul-de-sac.
Immaculately presented, thoughtfully designed and boasting a modern, neutral décor throughout, you'll have to be quick to secure this exceptional family home!
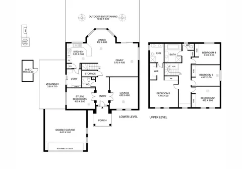
Upper level comprising of:
- Large master bedroom with walk-in robe, built-in robe and ensuite with his and her basins
- Bedrooms 2, 3 and 4 of good size, complete with built-in robes
- Spacious bathroom with separate bath and shower
- Separate toilet for your convenience
- Linen cupboard
- Light-filled passage with stunning feature arch window
Lower level comprising of:
- Grand wide entry with high vaulted ceiling
- An additional 5th bedroom or option to use as study
- Large lounge room with double doors
- Immaculate light-filled open plan family/dining and kitchen area with downlights, making the perfect space to entertain
- A very comfortable and sizeable kitchen with ample bench and storage space, stainless steel appliances including gas cooktop, dishwasher and pantry
- Powder room providing valuable third toilet
- Separate laundry with additional storage space
- Expansive paved pergola with pitched roof with ceiling fans, perfect for outdoor entertaining all year round
- Featuring an impressive built-in pizza oven and BBQ
- Additional verandah to the side of the house
- Garden shed
- Manicured front and rear gardens
Other great features of this home include:
- Ducted reverse cycle air conditioning throughout for year round temperature control
- Double garage with automatic panel lift door
- Automated roller shutters
- LED downlights
- High ceilings
- Quality floating timber flooring
Perfectly located close by to the parks, walking trails and lakes of Harry Wierda Reserve. Situated in close proximity to Northgate Shopping Centre and Gilles Plains Shopping Centre. Located nearby to a variety of schools including Cedar College. Convenient public transport options are also within easy reach. All this and only 9.5kms (approximately) to the Adelaide CBD.
For further information please contact Fadi Oudih on 0455 999 007, Paul Leombruno on 0439 160 161 or 8269 7711 (office).
RLA 200591
The Vendor's Statement (Form 1), the Auction Contract and the Conditions of Sale will be available for perusal by members of the public -
(A) at our office located at 87 North East Road, Collinswood for at least 3 consecutive business days immediately preceding the auction; and
(B) at the place at which the auction is to be conducted for at least 30 minutes immediately before the auction commences.
