Fabulous Courtyard Living
This fantastic low maintenance home provides a great opportunity for those seeking a secure and private property without compromising on comfort and location. Offering a flexible floorplan and the perfect lifestyle with many great amenities close by, this home is sure to impress families and first home buyers looking to get into the market, those already living in the area and looking to downsize, and investors looking to add to their current portfolio.
Features that make this home special:
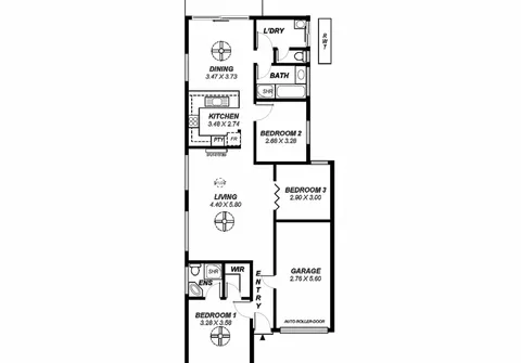
- Large master bedroom with ceiling fan, walk-in robe and ensuite
- Good sized bedrooms 2 and 3
- Spacious, light filled living area with ceiling fan and split system air conditioner
- Modern kitchen with gas cooktop and breakfast bar
- Dining area with ceiling fan
- Bathroom with separate bath and shower + separate toilet
- Separate spacious laundry
- Newly paved rear yard with gable roofed verandah, perfect for outdoor entertaining
- Newly paved driveway
- Solar electrical system with 7 panels
- Ducted vacuum system
- Fully fenced, secure rear yard with garden shed
- Garage with automatic roller door and direct internal entry
Situated in close proximity to Northgate Shopping Centre and Gilles Plains Shopping Centre. Located nearby to a variety of schools including Cedar College. Convenient public transport options are also within easy reach. All this and only 10kms (approximately) to the Adelaide CBD.
For further information please contact Fadi Oudih on 0455 999 007 or 8269 7711 (office).
RLA 200591
