Private and Prime Norwood Pocket
Tucked securely at the rear of a tightly held group of four, this freestanding modern home offers a sanctuary of peace and privacy, just footsteps from vibrant shopping, dining, and lifestyle along The Parade. A rare blend of tranquillity and proximity.
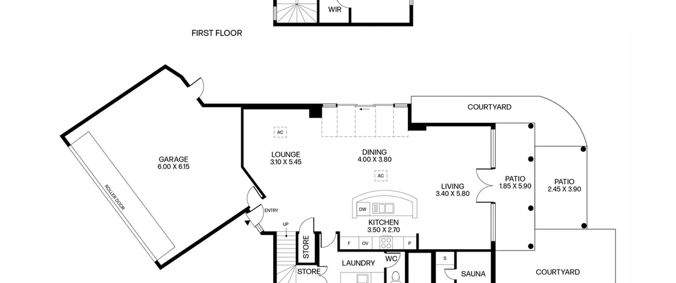
Step through secure gates to a home that immediately feels warm and inviting. Natural light flows across timber floors, from the elegant living area to the open-plan dining and family space framed by large conservatory windows overlooking the leafy courtyard.
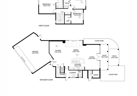
At the heart of the home lies a Caesarstone-topped kitchen designed for both beauty and function. Upstairs, light continues to pour in, enhancing a serene master bedroom with vaulted ceilings and generous ensuite with bath. Bedroom 2 features a walk-in robe, while Bedroom 3 includes a built-in robe and enjoys direct access to the main bathroom.
Features that make this home special:
- Freestanding position in a group of just four
- Secure entry via intercom and front gate
- Remote controlled double garage with internal access
- North-facing living zones filled with natural light
- Versatile floorplan with architectural details throughout
- Polished timber flooring on lower level
- Caesarstone kitchen with quality appliances
- Ducted reverse cycle air conditioning
- Ducted vacuum system
- Private paved courtyard ideal for entertaining
- Sauna for added relaxation
- Alarm system
- Ample storage
Only moments to The Parade’s boutiques, cafes and conveniences, this stylishly maintained home suits professionals, downsizers, or small families seeking low-maintenance luxury in a premium location, with excellent access to lifestyle and leisure. Additionally located nearby to many sought-after schools including Prince Alfred College, St Peters College, Norwood Morialta High School, Marryatville High School, Loreto College, Mary Mackillop and Pembroke College.
All information contained herewith, including but not limited to the general property description, price and the address, is provided to Boffo Real Estate by third parties. We have obtained this information from sources we believe to be reliable; however, we have not verified and do not guarantee its accuracy. The information contained should not be relied upon and you should make your own enquiries and seek advice in respect of this property or any property on this website.
The Vendor's Statement (Form 1), the Auction Contract and the Conditions of Sale will be available for perusal by members of the public - (A) at our office located at 78-80 North East Road, Walkerville for at least 3 consecutive business days immediately preceding the auction; and (B) at the place at which the auction is to be conducted for at least 30 minutes immediately before the auction commences.
Looking to purchase this property as an investment? Speak to our Property Management team to see how we can assist.
RLA 313174
