Charming Torrens Titled Cottage in Norwood's Prime Location!
Set behind a picket fence is this gorgeous, blue stone fronted, Torrens Titled cottage, offering the very best in contemporary living, in an outstanding location.
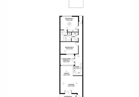
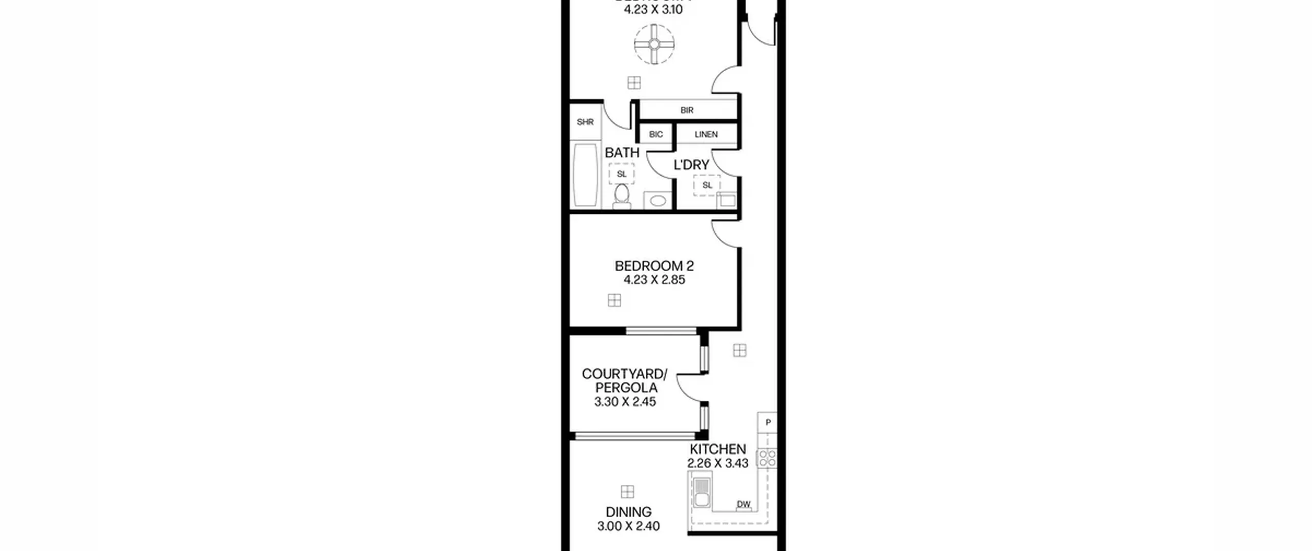
Step inside through the French doors to discover a beautiful light-filled and open-plan living and dining area that has a seamless flow to the kitchen and central courtyard, creating the perfect space to entertain. To the rear of the home two spacious bedrooms are located with a centrally located bathroom and separate laundry. A secure carport is located at the rear of the home, with the option to use as an additional outdoor entertaining area with its pitched roof and gorgeous greenery.
Your new home boasts an enviable location in a beautiful tree-lined street and within walking distance to an abundance of cafes, restaurants, boutique shopping and entertainment located on The Parade and Magill Road. Additionally, a short distance to the scenic Adelaide Parklands serving as your extended backyard and inviting you to enjoy leisurely strolls and various recreational amenities.
Whether you are looking for a home to live in within this in demand area or searching for a quality investment property or AirBnB, then this stylish residence could be the one for you.
Features that make this home special:
- Master bedroom with built-in robe, ceiling fan and access to bathroom
- Spacious second bedroom
- Open plan lounge and dining area with modern floating floorboards
- Kitchen offering stainless steel appliances including dishwasher and gas cooktop
- Bathroom with bath, separate shower, built-in cupboard and skylight
- Separate laundry with linen cupboard and skylight
- Ducted air conditioning throughout
- Enclosed courtyard between bedroom two and dining/kitchen area
- Rear access carport with roller door
In addition to above your new home is delightfully close by to Norwood Oval, public transport options and only 3kms (approximately) to the CBD. Additionally located nearby to many sought-after schools including Prince Alfred College, St Peters College, Norwood Morialta High School, Marryatville High School, Loreto College, Mary Mackillop and Pembroke College.
All information contained herewith, including but not limited to the general property description, price and the address, is provided to Boffo Real Estate by third parties. We have obtained this information from sources we believe to be reliable; however, we have not verified and do not guarantee its accuracy. The information contained should not be relied upon and you should make your own enquiries and seek advice in respect of this property or any property on this website.
The Vendor's Statement (Form 1), the Auction Contract and the Conditions of Sale will be available for perusal by members of the public - (A) at our office located at 78-80 North East Road, Walkerville for at least 3 consecutive business days immediately preceding the auction; and (B) at the place at which the auction is to be conducted for at least 30 minutes immediately before the auction commences.
RLA 313174
