Luxury Family Haven with Generous Living Areas and Stunning Outdoor Retreat
Nestled on a generous 541sqm (approximate) allotment in a quiet Northgate pocket, this stunning four-bedroom, three-bathroom home combines contemporary style with effortless functionality. Designed for modern family living, it boasts two spacious living areas, a resort-style outdoor oasis and versatile spaces perfect for entertaining or accommodating a growing family in comfort and style.
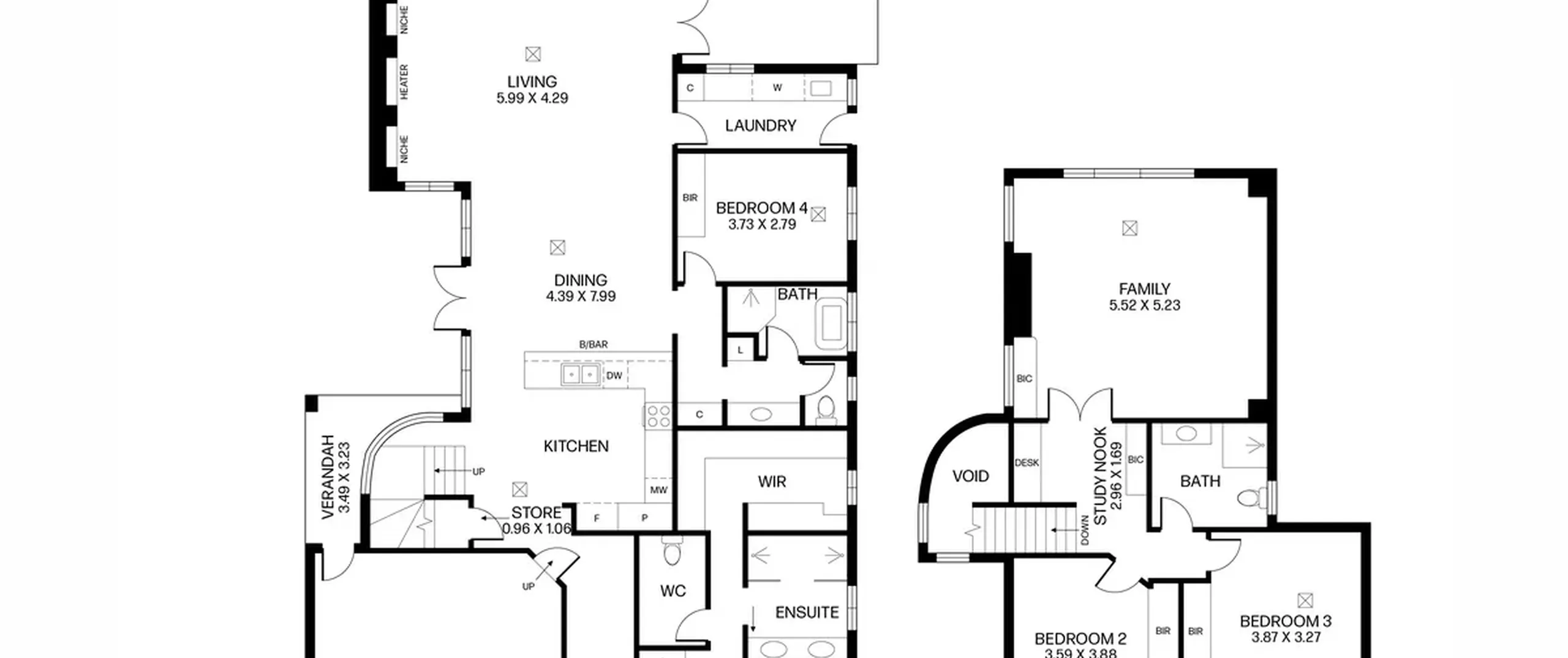
Step inside and you’re greeted by a free-flowing design that encourages family togetherness, while still providing private pockets to relax or work in peace. Cooking becomes a joy in the centrally located kitchen, where you’re never far from the conversation. With family relaxing nearby in the elegant living space or catching up over coffee at the breakfast bar, it’s easy to feel connected. Generous bedrooms offer everyone their own space to unwind, while the second family area upstairs provides a spacious area to put your feet up and relax in comfort.
The outdoor entertaining area is your private resort - lush, inviting and complete with a sparkling in-ground swimming pool, perfect for relaxation or celebration. From family dinners and summer swim days to weekend barbecues with friends, this space makes every day feel like a holiday.
Features that make this home special:
Downstairs:
- Expansive open-plan layout seamlessly connecting the modern kitchen, living and dining areas
- Sleek kitchen featuring a breakfast bar, stainless steel dishwasher, built-in microwave, gas cooktop and stylish oven
- Adjacent dining area with direct access to the side courtyard featuring high quality stone pavers
- Spacious main living area with built-in niche shelving, gas heater and effortless flow to the outdoor entertaining space
- Grand master suite privately positioned downstairs, complete with elegant chandelier, generous walk-in robe with high quality cabinetry and luxuriously renovated ensuite with floor to ceiling Italian tiles, double shower, dual vanity with stone benchtops and separate toilet
- Downstairs bathroom with floor to ceiling tiles, stone benchtops and freestanding bath
Stunning Staircase with curved glass feature wall
- Fourth bedroom or home office with built-in robe
- Sparkling heated swimming pool with break away decked seating area and outdoor shower
- Incredible outdoor entertaining area with gable roofed pergola, stone pavers and electric blinds
- Internal and external speaker system
- Double garage with internal access and access to outdoor verandah area
- Additional driveway parking
- Secure electric front gate and security camera system
- Low maintenance gardens with automatic irrigation system
- Alarm system with window sensors
- Solar System
Upstairs:
- Expansive family room or teenage retreat
- Bedrooms two and three are generously sized, complete with built-in robes
- Well-appointed main bathroom with frameless shower, wall hung vanity and toilet
- Light filled study nook
- Ducted heating and cooling throughout
Nestled just a short stroll from the peaceful Vickers Vimy Reserve and within easy walking distance of Northgate Reserve, this location offers exceptional convenience. Close by, you'll find a range of cafés, shops and schools, including Cedar College, a 6-minute (approximate) walk away. Northgate Shopping Centre is just a 3-minute (approximate) drive, while Gepps X Home HQ is also a short drive for all your shopping needs. All of this is ideally situated only 11km (approximately) from the CBD.
All information contained herewith, including but not limited to the general property description, price and the address, is provided to Boffo Real Estate by third parties. We have obtained this information from sources we believe to be reliable; however, we have not verified and do not guarantee its accuracy. The information contained herewith should not be relied upon and you should make your own enquiries and seek advice in respect of this property or any property on this website.
Looking to purchase this property as an investment? Speak to our Property Management team to see how we can assist.
RLA 313174
