Easy Care Low-Maintenance Living in the Heart of Northgate!
Nestled in the serene and sought-after suburb of Northgate, this beautifully presented three-bedroom home is perfect for a range of buyers, including first-time homeowners, savvy investors, and downsizers.
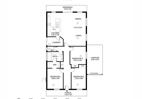
Step inside to discover a, light-filled interior boasting an open-plan living area that seamlessly flows to the kitchen, complete with dishwasher and gas appliance, with ample space for entertaining. From here, sliding doors to outside courtyard featuring an established garden—a tranquil retreat where you can create your very own oasis and bask in the sunshine.
With its prime location in community titled group tucked away in a quiet cul-de-sac, this property is perfectly positioned with Leopold Conrad Reserve right on your doorstep. Offering the perfect blend of contemporary style, low-maintenance living, and unmatched convenience, this home is an opportunity not to be missed.
Features that make this home special:
- Three bedrooms, with bedroom 1 featuring a walk-thru robe and direct access to the 2-way bathroom and separate W.C.
- Bedrooms 2 and 3 both include built-in robes
- Spacious, light-filled open-plan dining and kitchen area, with glass sliding doors leading to the rear
- Kitchen equipped with stainless steel appliances, including a gas cooktop, oven, and dishwasher, plus ample storage space
- Functional laundry with a trough and direct external access
- Ducted reverse cycle air-conditioning throughout for year-round comfort
- Single carport with auto roller door
- Linen cupboard
- Alarm system
- Solar system
- Built approx. 2003
- Community title in a group of 10 properties
Offering privacy and security with classic street appeal, and conveniently located across from Leopold Conrad Reserve, only 10km (approximately) from the CBD and surrounded by other quality homes. Within easy walking distance to public transport options, parks, playgrounds and schools including Cedar College. Only a short distance to Northgate Shopping Centre.
All information contained herewith, including but not limited to the general property description, price and the address, is provided to Boffo Real Estate by third parties. We have obtained this information from sources we believe to be reliable; however, we have not verified and do not guarantee its accuracy. The information contained should not be relied upon and you should make your own enquiries and seek advice in respect of this property or any property on this website.
The Vendor's Statement (Form 1), the Auction Contract and the Conditions of Sale will be available for perusal by members of the public - (A) at our office located at 78-80 North East Road, Walkerville for at least 3 consecutive business days immediately preceding the auction; and (B) at the place at which the auction is to be conducted for at least 30 minutes immediately before the auction commences.
Looking to purchase this property as an investment? Speak to our Property Management team to see how we can assist.
RLA 313174
