Welcome home! A Wonderfully Maintained Torrens Title Delight.
Offering a blend of comfort and style, this impressive home is perfectly sprawled over two levels. With warm timber wood flooring flowing underfoot complimented by a light and airy ambience, this is an abode you’ll be eager to call your own.
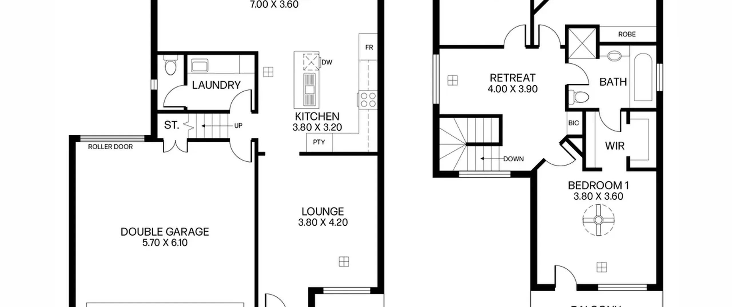
Upstairs is home to three generous and well-equipped bedrooms and a centrally located main bathroom. The master bedroom has direct access to the main bathroom and features a private balcony, the perfect place to relax and enjoy your morning coffee. A retreat completes the upper level which can be utilised as your very own home office.
Moving downstairs you are treated to a formal lounge area that leads seamlessly through to the open-plan kitchen, dining and living space. A neat and tidy kitchen boasts a suite of quality appliances including a gas stove top and an abundance of cupboard and bench space - a perfect outlet for the home chef!
Entertain with ease, day or night under the executive pergola overlooking the neatly landscaped and well-maintained rear yard.
With a charming street presence, positioned in the original Northgate Estate, located only footsteps from the local playground and close by to outstanding amenities there is nothing left to do but move in and enjoy this wonderful, family friendly abode!
Upper-level comprising:
- Generous master bedroom with large walk-in robe, direct access to the two-way bathroom and private balcony to enjoy
- Good sized bedrooms 2 and 3; both with built-in robes
- Modern two-way bathroom with large vanity, bath and separate shower
- Ducted air conditioning
- Retreat which can be utilised as a home office or study
Lower level comprising:
- Formal lounge to welcome you home
- Contemporary kitchen with dishwasher, gas cooktop, ample cupboard space, spacious island bench with breakfast bar
- Open-plan living and dining area with sliding door access to the backyard
- Separate laundry
- Valuable second toilet
- Ducted air conditioning
- LED lighting throughout
- Pitched roof pergola with ceiling fan overlooking the beautifully manicured gardens, perfect for hosting friends and family
- Garden shed
- Double garage with panel lift door, storage cupboard internal access and external access through additional roller door
- Double-width driveway for additional off-street parking
Located a stone’s throw away from the tranquil Northgate Reserve and within close proximity to public transport options, a variety of cafés and schools including Cedar College within walking distance. The convenience of Northgate Shopping Centre is only 350m away (approximately) for all your daily shopping needs, including Woolworths, Bakery and Chemist. All of this is ideally located only 8km (approximately) from the CBD.
For further information please contact Fadi Oudih on 0455 999 007, Paul Leombruno on 0439 160 161 or 8269 7711 (office).
All information contained herewith, including but not limited to the general property description, price and the address, is provided to Boffo Real Estate by third parties. We have obtained this information from sources we believe to be reliable; however, we have not verified and do not guarantee its accuracy. The information contained should not be relied upon and you should make your own enquiries and seek advice in respect of this property or any property on this website.
RLA 313174
