Endless Potential!
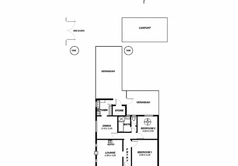
This home sits on a large, easement free corner block of approximately 759sqm in the ever emerging suburb of Northfield. Currently disposed as a 2 bedroom home with a granny flat, this would respond well to some upgrading, renovating or re-developing (all subject to council consent).
Features of the home:
- Spacious bedrooms 1 and 2, bedroom 2 with ceiling fan
- Light filled lounge with heater
- Dining room
- Functional kitchen with freestanding cooker and oven
- Bathroom with separate bath and shower + separate toilet
- Store room
- Expansive verandah
- Rainwater tanks
- External detached rumpus room with bathroom with kitchenette
- Single carport
Conveniently located adjacent the new Lightsview development and close to Northgate Sports Club, Northgate Shopping Centre, a variety of schools and public transport options.
For further information please contact Darren Cowey on 0439 160 161 or 8269 7711 (office).
RLA 200591
