Heritage Elegance Meets Modern Style in This 1880’s Sandstone Cottage
OFFERS CLOSE TUESDAY 24TH AUGUST 5PM.
Set behind a stunning sandstone façade is this very rare Torrens Titled cottage, fully renovated and offering the very best in contemporary living and location. The original sash windows, 3.2m high ceilings, heritage skirting and polished timber floors have been paired perfectly with luxurious upgrades to ensure complete comfort and style
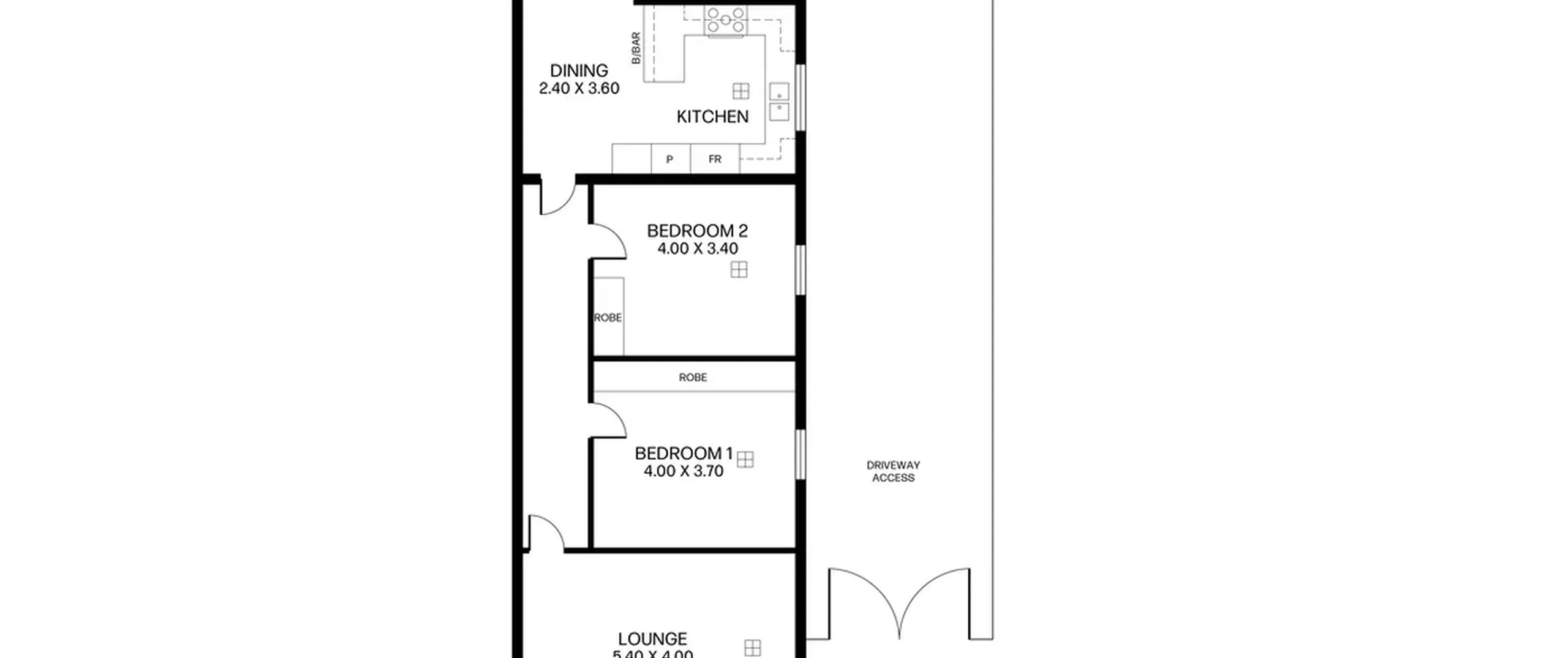
The layout offers two large bedrooms, both with built-in robes, wide entry hallway and impeccably renovated throughout. The light-filled lounge is illuminated by a statement pendant light, plantation shutters and there is a beautiful dining room that flows into the upgraded kitchen with Caesarstone benchtops. A large separate laundry, stunning bathroom with feature floor to ceiling tiles, and a study nook complete the internal layout of this home while French doors open out to the private pergola with Red Gum decking and seating.
There is a small garden and storage shed as well as potential for rear lane access. A shared driveway provides parking for two cars and there is a permitted park for one car on the street in front of the property. Your new home boasts an enviable location in a quiet street close to all the cafes and restaurants of O’Connell Street, Melbourne Street, The Adelaide Oval and the scenic Adelaide Park Lands.
Features that make this home special:
- Two bedrooms, both of good size and complete with built-in robes
- Spacious lounge to the front of the home with plantation shutters and feature pendant light
- Wide hallway with polished Victorian Ash timber flooring
- Dining adjacent kitchen
- Stylish kitchen offering breakfast bar with contemporary pendant lighting, quality stainless steel appliances, Caesarstone benchtops and ample cupboard and bench space
- Study nook with French doors opening to outdoor alfresco
- Modern main bathroom with bathtub, separate shower and floor to ceiling tiles
- Separate toilet
- Well-kept laundry with quality built-in joinery
- Ducted reverse cycle air conditioning throughout
- NBN connection
- Impressive outdoor entertaining area with all weather pergola, Red Gum timber decking and built-in seating
- Extremely low maintenance garden with garden shed and side gate access
- Secure off-street parking for 2 cars behind double gate in shared driveway
- Potential for rear lane access
Situated in a fantastic location, within a 2 minute (approximate) walk to vibrant O’Connell Street, Melbourne Street and Adelaide Parklands. Adelaide Oval, The Riverside precinct and the CBD are only minutes away. Also in close proximity to excellent private and public schools including North Adelaide Primary, Women’s and Children’s Hospital, transport, shopping, restaurants and the North Adelaide Aquatic centre.
Be quick for this one, these homes rarely present themselves to the market in North Adelaide!
For further information please contact Graeme Brown on 0455 111 791, Andrew Tamburrino on 0447 888 177 or 8269 7711 (office).
RLA 200591
The Vendor's Statement (Form 1), the Auction Contract and the Conditions of Sale will be available for perusal by members of the public -
(A) at our office located at 87 North East Road, Collinswood for at least 3 consecutive business days immediately preceding the auction; and
(B) at the place at which the auction is to be conducted for at least 30 minutes immediately before the auction commences.
