Timeless Charm!
Step into this well presented single-fronted blue stone cottage, Circa 1800’s. Nestled in the heart of Nailsworth, this delightful abode boasts timeless appeal inside and out.
With a fresh, light, and bright interior, this two-bedroom retreat offers updated features leaving a little for the new owners to add to themselves. Whether you're seeking a cozy hideaway or a convenient lock-up-and-leave option, this cottage ticks all the boxes.
Features that make this home special:
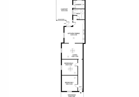
- Two bedrooms, bedroom 2 with ceiling fan
- Cosy lounge room with ceiling fan and plush carpet
- Open kitchen has gas cooker and meals area
- Main bathroom complete with bath tub, shower, toilet and vanity
- Ducted reverse cycled air conditioning
- Shared drive through side access to rear carport
- External laundry
- Garden shed
- Land size 328sqm (approximate)
Enjoy the convenience of living close to quality schooling, shopping, and public transport, with just a short commute to the city. Moments from Nailsworth Primary School, this location offers easy access to all amenities. Situated only 6km (approx.) from the city, public transport is a short walk, while shopping options abound at Northpark and Sefton Plaza shopping precincts. Zoned to Nailsworth Primary School and Botanic High School, with nearby options for quality private schooling at Our Lady of the Sacred Heart College, St. Martins, St. Monica's, Wilderness School, and St. Andrew's.
All information contained herewith, including but not limited to the general property description, price and the address, is provided to Boffo Real Estate by third parties. We have obtained this information from sources we believe to be reliable; however, we have not verified and do not guarantee its accuracy. The information contained should not be relied upon and you should make your own enquiries and seek advice in respect of this property or any property on this website.
The Vendor's Statement (Form 1), the Auction Contract and the Conditions of Sale will be available for perusal by members of the public - (A) at our office located at 78-80 North East Road, Walkerville for at least 3 consecutive business days immediately preceding the auction; and (B) at the place at which the auction is to be conducted for at least 30 minutes immediately before the auction commences.
RLA 313174
