Spacious Family Home!
If you are looking for a generous sized family home for your family to grow and thrive, then your search ends here. This four-bedroom home is ready and waiting for you to add your own personal style.
Features that make this home special:
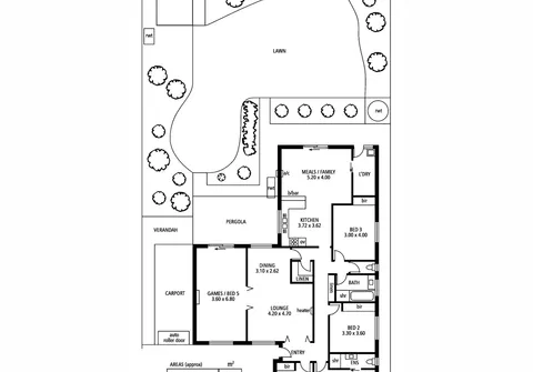
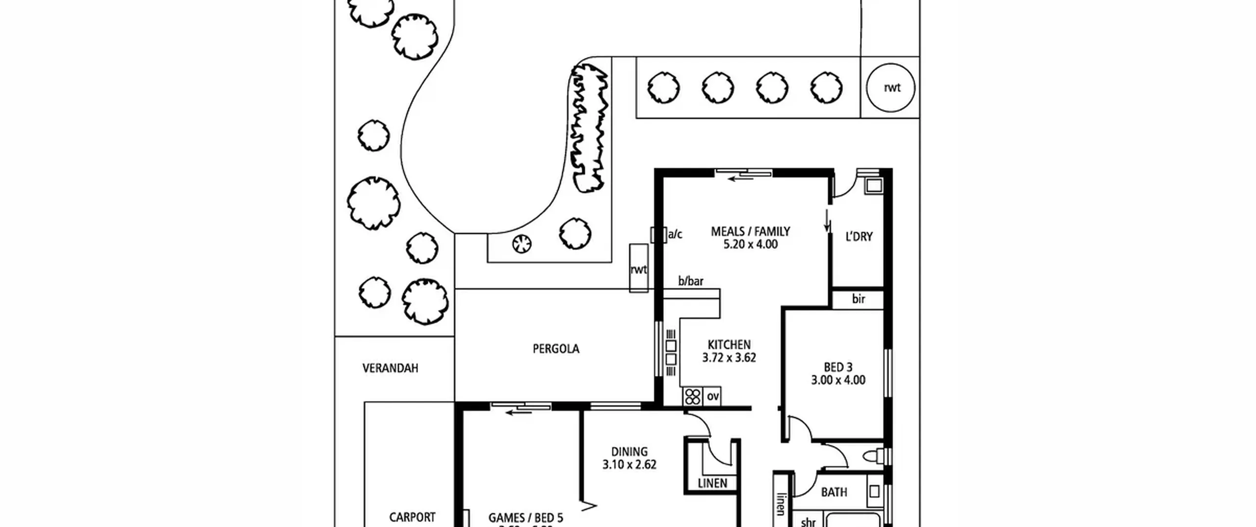
- 4 generous bedrooms master and ensuite bathroom, all have built in robes
- Open plan kitchen meals and family with sliding doors to rear garden
- Kitchen has gas cooker (not working), pura tap and loads of cupboard space
- Formal lounge and dining with gas wall space heater
- Rumpus room or 5th bedroom has split system air conditioning and sliding doors leading to the rear garden
- Main bathroom has bath, shower and vanity with separate W.C.
- Separate laundry
- Storage room and linen cupboard
- Single auto carport and roller door
- Solar panels 1 kilowatt
- Workshop with power
- Built 1982
- Land size 774m2 (approx.) with 18m frontage
- Rental potential $700 - $750 per week (approx.)
Situated in a quiet tree-lined residential location, enjoy living so close to quality schooling, shopping, and public transport whilst being only a short commute to the city. - Moments from Nailsworth Primary School. Perfectly located within easy reach of all amenities. Only 6km to the city. Public transport is a short walk to Main North Road. Easy access to shopping can be found at Northpark and Sefton Plaza shopping precinct.
Zoned to Nailsworth Primary School and Botanic High School. Quality private schooling is nearby at Our Lady of the Sacred Heart College, St Martins, St Monicas, Wilderness School and St Andrews.
Auction Saturday 23 March 2024 @ 11am (Unless Sold Prior)
All information contained herewith, including but not limited to the general property description, price and the address, is provided to Boffo Real Estate by third parties. We have obtained this information from sources we believe to be reliable; however, we have not verified and do not guarantee its accuracy. The information contained should not be relied upon and you should make your own enquiries and seek advice in respect of this property or any property on this website.
The Vendor's Statement (Form 1), the Auction Contract and the Conditions of Sale will be available for perusal by members of the public - (A) at our office located at 78-80 North East Road, Walkerville for at least 3 consecutive business days immediately preceding the auction; and (B) at the place at which the auction is to be conducted for at least 30 minutes immediately before the auction commences.
RLA 313174
