Symmetrical Sandstone Fronted Cottage!
What a place to call home! Lovingly cared for and updated, this property is sure to impress. Once you step inside you will notice the character features including high ornate ceilings, gas fireplace and feature fireplaces, polished floorboards, leadlight windows and a gorgeous wide entrance hallway.
Whether you're enjoying the company of family and friends in the large outdoor entertaining area, watching the kids and pets play in the backyard or keeping cosy in the formal lounge with the gas fireplace, this home has all the boxes ticked.
Perfectly positioned on a generous 603sqm (approximate) block with a north facing rear in a beautiful tree lined street, this home provides a fantastic opportunity for those looking to own a charming character home in the popular suburb of Nailsworth.
Impeccably presented with the chance to enjoy a City fringe lifestyle, this is an opportunity not to be missed!
Features that make this home special:
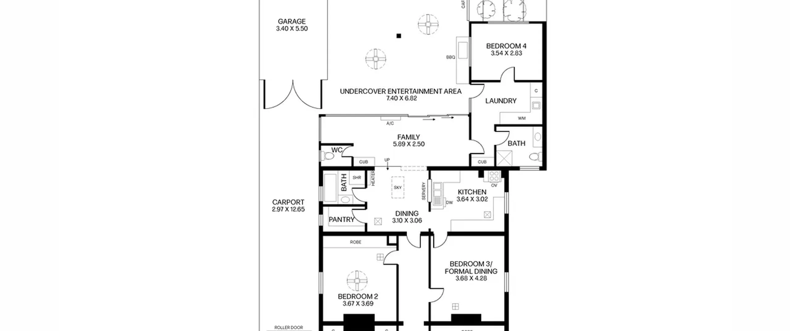
- Formal lounge room with gas fireplace and built-in cupboards and shelves
- Four spacious bedrooms, bedrooms one and two with built-in robes and ceiling fans
- Kitchen with servery to dining area, walk-in pantry, dishwasher, ample bench and cupboard space
- Open plan family and dining area with heater and air conditioning, flowing seamlessly to the outdoor area
- Main bathroom with spa bath and separate shower
- Valuable second bathroom
- Large laundry with external access
- Ducted air conditioning to some rooms
- Outdoor entertaining area with ceiling fans, built-in BBQ, screen doors and café blinds to fully enclose
- Spacious rear yard with lawn area, perfect for the kids and pets to run free
- Gazebo
- Pond
- Rainwater tank
- Garden/tool shed
- External studio/office with air conditioning
- Double length carport with drive through access to single garage
Superbly located close by to the Prospect Road shops, cafes and Palace Nova Cinema, Sefton Plaza, Northpark Plaza, North Adelaide and the Broadview and Prospect Ovals. Nearby to a beautiful reserve with tennis courts, BBQ, playgrounds and plenty of space for the kids to play. Zoned for the sought after schools such as Adelaide High School, Adelaide Botanic High School and Nailsworth Primary. An abundance of public transport options are available nearby providing a lifestyle hard to match. All this and you will be living less than 6kms (approximately) to the CBD.
For further information please contact Graeme Brown on 0455 111 791, Debbie Orr on 0427 530 946 or 8269 7711 (office).
All information contained herewith, including but not limited to the general property description, price and the address, is provided to Boffo Real Estate by third parties. We have obtained this information from sources we believe to be reliable; however, we have not verified and do not guarantee its accuracy. The information contained should not be relied upon and you should make your own enquiries and seek advice in respect of this property or any property on this website.
RLA 313174
