Low-Maintenance Living in a Quiet Court Setting
Positioned in an increasingly desirable pocket of Munno Para West, 33 Lime Court presents a fantastic opportunity for first-home buyers, savvy investors and those seeking a comfortable, low-maintenance lifestyle. Tucked away in a quiet court and set on an 209sqm (approximate) allotment, this well-maintained home offers a blend of functionality, modern convenience and easy-care living.
The thoughtfully designed layout maximises space and natural light, creating a welcoming environment ideal for everyday living. With its manageable allotment and low-maintenance appeal, the property is perfectly suited to busy professionals, downsizers or tenants alike, making it a strong addition to any investment portfolio.
Features that make this home special:
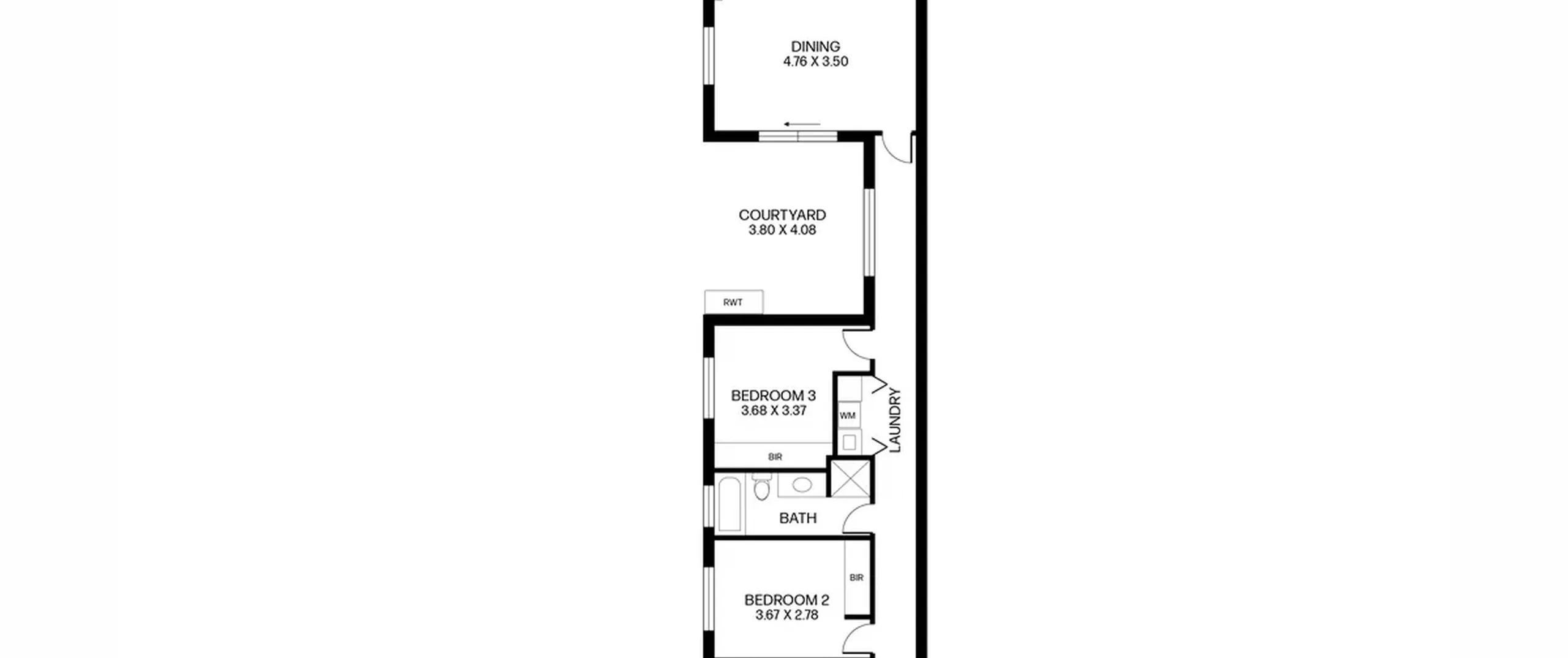
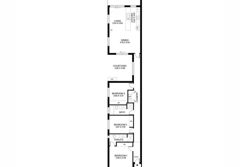
- Three generously sized bedrooms, all complete with built-in robes
- Practical and well-designed floorplan with comfortable living areas
- Two bathrooms offering added convenience for families or shared living
- Light-filled living and dining spaces, ideal for everyday living
- Well-appointed kitchen with ample storage and bench space
- Secure double garage
- Easy-care outdoor area, perfect for relaxed entertaining
- Currently tenanted at $470 per week until 9/10/2026
Located in a fast-growing northern suburb, this home benefits from ongoing development and expanding local infrastructure, with easy access to schools, childcare, shopping centres, cafes and everyday amenities. Nearby parks and reserves offer great outdoor spaces, while public transport and major road links provide convenient access to surrounding suburbs and the Adelaide CBD.
All information contained herewith, including but not limited to the general property description, price and the address, is provided to Boffo Real Estate by third parties. We have obtained this information from sources we believe to be reliable; however, we have not verified and do not guarantee its accuracy. The information contained herewith should not be relied upon and you should make your own enquiries and seek advice in respect of this property or any property on this website.
The Vendor's Statement (Form 1), the Auction Contract and the Conditions of Sale will be available for perusal by members of the public - (A) at our office located at 78-80 North East Road, Walkerville for at least 3 consecutive business days immediately preceding the auction; and (B) at the place at which the auction is to be conducted for at least 30 minutes immediately before the auction commences.
Looking to purchase this property as an investment? Speak to our Property Management team to see how we can assist.
RLA 313174
Enquire about this property
