A Bright and Modern Home Ready for Easy-Care Living!
This centrally located and modern abode is ideal for a growing family, first home buyers and investors alike. You or your tenants will live a low-maintenance lifestyle, close to everything you need making this property a must-see.
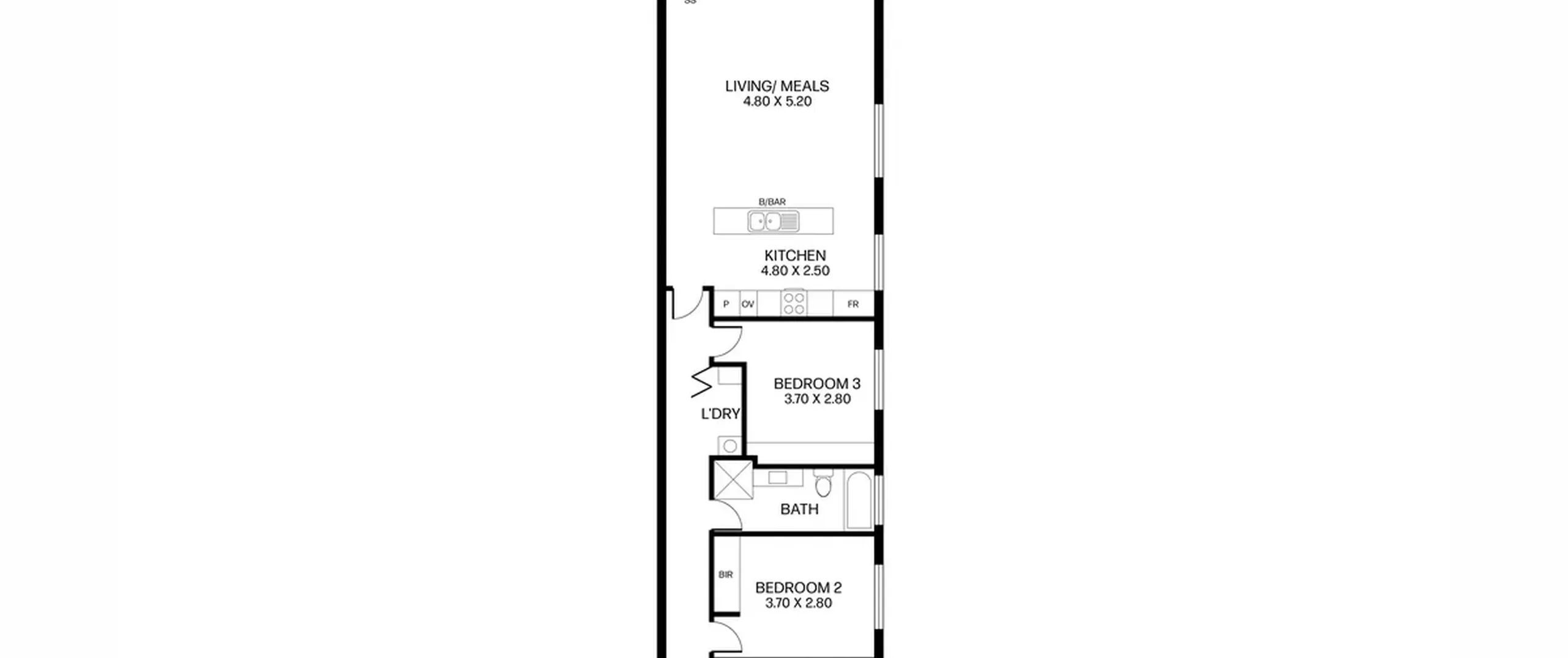
The lucky new owners will love their open-plan living, dining and kitchen. Easy-care wooden floors flow underfoot and a neutral colour palette frames the stylish kitchen. Fully equipped with ample bench space, plenty of cabinetry and an island bench, you’ll love working on your culinary skills.
Features that make this home special:
- Master bedroom with built-in robe, ceiling fan and ensuite
- Bedrooms 2 and 3 both complete with built-in robes
- Main bathroom with separate bath and shower
- Open plan living, kitchen and dining area
- Modern kitchen with gas cooktop and breakfast bar
- European laundry
- Low maintenance courtyard at rear
- Single carport at rear with automatic roller door
- Currently tenanted at $290/week until the 1st of April 2022
Only minutes from all the shopping and entertainment that Munno Para Shopping City and Elizabeth City Centre have to offer. Enjoy a round of golf at the nearby Playford Lakes golf course. Ideally located close to a variety of schools including Mark Oliphant College and St Columba College. All this and only 35 minutes (approximately) to the CBD via the Northern Expressway.
For further information please contact Lidija Kies on 0477 779 579 or 8269 7711 (office).
RLA 200591
