Perfect to Live In or Great Investment Property. The Choice is Yours!
On offer is a substantial 668sqm (approximate) corner allotment with 22.6m (approximate) frontage providing an assortment of opportunities to suit your needs, whether you are looking to renovate, build your dream home or subdivide and redevelop (Subject to planning consents). Alternatively, first home buyers will appreciate the affordability and convenient lifestyle on offer.
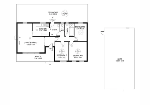
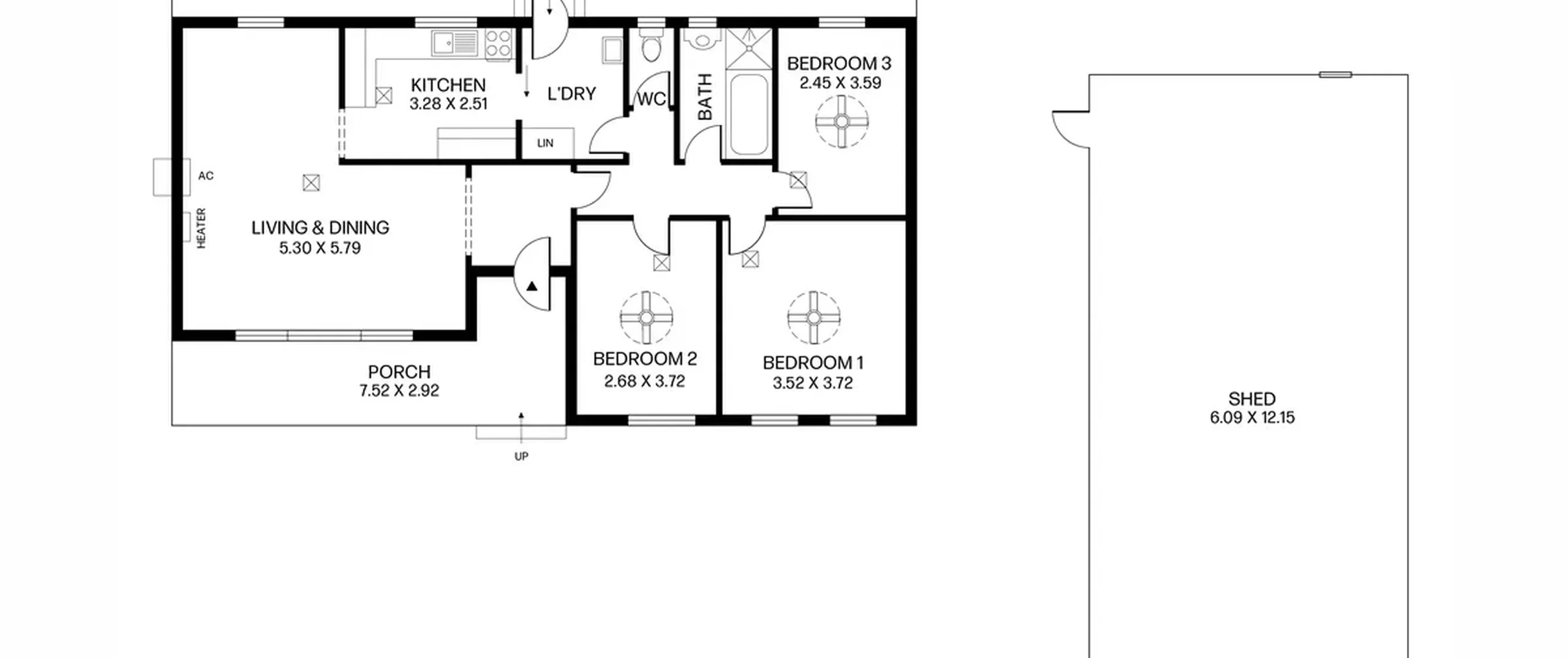
Inside you will find a beautifully presented abode, with polished floorboards and recent updates throughout. Three well sized bedrooms and a neat and tidy main bathroom, bright and sleek kitchen with stylish timber bench tops and sleek white cabinetry and feature black handles, completing the hub of the home is a cosy and light filled living/dining where you are sure to lose track of time in a good book.
On the outside, a large shed with room for four cars and access from Alawoona Road, a low maintenance, landscaped front and rear yard with ample grassed area to enjoy. A paved verandah with feature pond and room to entertain your nearest and dearest.
Features that make this home special:
- Three good sized bedrooms all with ceiling fans
- Light-filled open plan living and dining area with air conditioner and wall heater for year round comfort
- Chic and modern kitchen stainless steel appliances, induction cooktop and ample cupboard space
- Sparkling main bathroom with bath and shower + separate toilet for added convenience
- Separate laundry with external access and linen storage
- Spacious undercover verandah with pond, making the perfect spot to entertain guests
- Backyard with good sized grass area for kids and pets to enjoy
- Low-maintenance front garden with porch
- Detached shed with room for multiple vehicles, or a boat or caravan
Located in close proximity to a variety of local shops, parks, public transport options, schools including Trinity College Blakeview, Munno Para Primary School and Kindergarten, St. Columbia College, Mark Oliphant College and Adelaide North Special School. All of this and easy access to the Northern Expressway!
For further information please contact John Ktoris on 0438 945 704 or 8269 7711 (office).
All information provided has been obtained from sources we believe to be accurate, however, we cannot provide any guarantee and we accept no liability for any errors or omissions (including but not limited to a property's land size, floor plans and size, building age and condition). Interested parties should make their own inquiries and obtain their own legal advice.
RLA 313174
