Dream Family Home Offering Comfort, Space and Style!
Welcome to 10 Fanflower Way, where contemporary style and family-friendly comfort are perfectly combined. This idyllic home is set along a quiet street with the lucky new owners sure to love living within easy reach of parks, bus stops, schools and the popular Munno Para Shopping City.
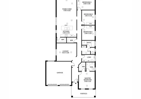
The layout is spacious and set over one level with four bedrooms, two bathrooms and multiple living areas. There’s a lounge room set off the main hallway along with an open-plan kitchen, family room and dining area that leads to the covered rear alfresco. A walk-in pantry, an island and quality appliances are yours to enjoy in the chic kitchen as guests and loved ones gather at the breakfast bar and watch you cook up a storm.
All the bedrooms run down one side of the home including your luxe master with a walk-in robe and ensuite. The guest bedrooms have built-in robes plus there’s a three-way main bathroom, a laundry and an attached double garage.
Note: Currently tenanted until May 2022 for $350.00 per week
Features that make this home special:
- Spacious master bedroom complete with a walk-in robe and ensuite
- Bedroom 2, 3 and 4 of good size all with built-in robes
- Commodious open plan family, meals and kitchen area complete with downlights and offering seamless flow to the alfresco
- Modern kitchen with a suite of stainless-steel appliances including gas cook top, dishwasher, ample cupboard and bench space including a breakfast bar
- Additional light-filled lounge room
- Contemporary 3-way bathroom with separate bath and shower
- Separate laundry with linen cupboard and external access
- Tiled alfresco entertaining area waiting to host your next gathering
- Ducted gas heating and ducted evaporative cooling
- Fully fenced low maintenance rear yard
- Double garage with automatic roller doors + roller door to rear and internal access
For convenience, the new Playford Alive development area is only a few minutes away as are picture-perfect parks and the bustling Munno Para Shopping City. Schools and amenities are at your fingertips and you’re just moments from public transport links connecting you to the Adelaide CBD.
For further information, please contact Mark Fricker on 0413 000 845 or 8269 7711 (office).
RLA 200591
The Vendor's Statement (Form 1), the Auction Contract and the Conditions of Sale will be available for perusal by members of the public -
(A) at our office located at 78-80 North East Road, Walkerville SA 5081 for at least 3 consecutive business days immediately preceding the auction; and
(B) at the place at which the auction is to be conducted for at least 30 minutes immediately before the auction commences.
