Modern Living With Park Views!
Torrens Title Townhouse, the perfect first home or ideal investment opportunity. Rental Appraisal: $370-$380 per week!
Located in the sought after Parkindula Park Precinct with Heysen Boulevard frontage. Surrounded by wide open space and adjacent to tennis courts, you will simply love living here.
This fantastic low maintenance townhouse provides a great opportunity for those seeking a secure and private property without compromising on comfort and location. Built in 2018, this home allows you to enjoy your own lifestyle and is sure to impress!
Boasting a huge list of features and situated in the newly developed Bluestone Estate, this is a home that will truly appeal to those already living in the area and looking to downsize. Equally it represents a great opportunity for first home buyers and astute investors to rent out and capitalise on the growing suburb.
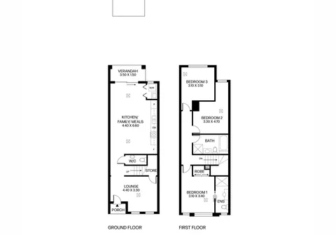
Features that make this home special:
- Main bedroom with built-in robe and ensuite
- Good sized bedroom 2 and 3
- Light filled open plan living and dining
- Spacious lounge
- Stylish kitchen with ample cupboard and bench space and stainless steel appliances
- Modern main bathroom with bath and separate shower
- Powder room downstairs with toilet and basin
- European laundry
- Ducted reverse cycle air conditioning throughout
- Fully fenced, low maintenance yard
- 3000L rain water tank
- Single carport with automatic roller door and rear access from private laneway
- Open study area
- Alarm system
- NBN connected
- Video intercom
- Torrens Title
Superbly located in the new Bluestone Development across from parks and a playground. Bluestone's carefully planned design boasts a balance of both convenience and open space combined with the hills lifestyle that surrounds. The new Parkindula Park situated a stone’s throw from the property is a great attraction to the area and a precinct to enjoy at the convenience of your doorstep. Zoned for the sought after schools such as Mount Barker Primary and Mount Barker Waldorf School. An abundance of walking trails, shopping facilities and brewery and winery options available nearby providing a lifestyle hard to match. All this and you will be living within a 35 minute drive (approximately) to the CBD.
Inspection is a must!
For further information please contact Gabriel Titmarsh 0497 191 000 or 8269 7711 (office).
RLA 200591
