A Bright and Stylish Home Perfect for Easy-Care Living!
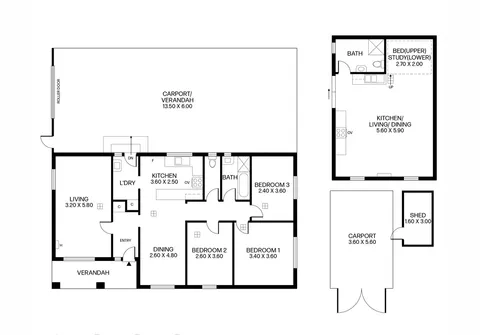
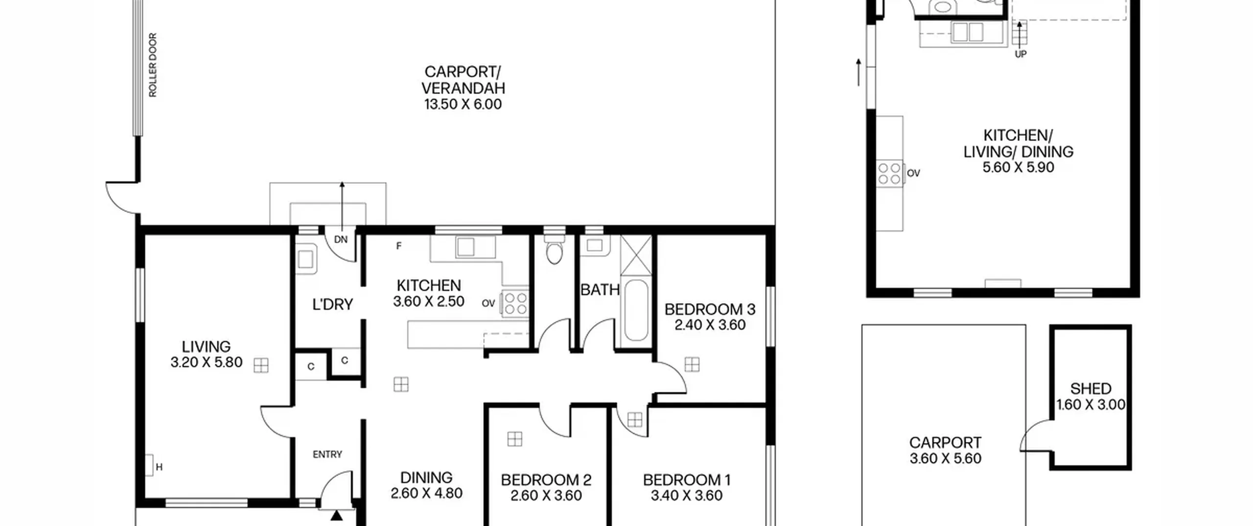
This well presented home, positioned on a large corner block in Morphett Vale showcases ample room to live and play. Boasting a great sense of light and space across the main floorplan including beautiful original hardwood floorboards that flow seamlessly throughout the three bedrooms and continue into the living space. A versatile rear yard complete with verandah/carport and boasts a detached and fully self-maintained studio featuring an on-trend loft style bed, study, kitchenette, and bathroom. There is nothing to do but simply move in and enjoy the lifestyle this fabulous property offers!
Situated on a generous 694sqm (approximate) corner block with a wide frontage. This home is sure to appeal to first home buyers looking to get into the market, families looking for convenience and room to play, investors looking to rent out and reap the rewards or redevelop (subject to council consent). Additionally providing a dual driveway and plenty of room for your caravan, boat, or trailer. Astute buyers will surely be impressed with this well-maintained property.
Features that make this home special:
- Three bedrooms of good size with quality timber venetian blinds
- Light filled living area with gas wall heater
- Spacious formal dining room
- Kitchen features gas cooking with ample cupboard and bench space
- Central main bathroom with bath and shower
- Convenient separate toilet
- Valuable laundry with external access
- Attractive timber floors flow through living areas and bedrooms
- Impressive separate studio with kitchen and bathroom facilities, includes reverse cycle air conditioner
- Studio features private entrance/access, carport and shed for added storage
- Carport with roller door
- Paved, pitched roof verandah offering an expansive entertaining space
- Ducted evaporative air conditioning throughout home
- Roller shutters to all front and rear windows excl. laundry, bathroom and toilet
- Large, low maintenance lawn area
Superbly located just a short drive to some of Adelaide’s best beaches, including Port Noarlunga, Christies Beach and Moana Beach. Within proximity from all the shopping and entertainment that Westfield Marion and Colonnades Shopping Centre have to offer. Within walking distance to the wonderful Wilfred Taylor Reserve, Recreation and Sports Centres and a variety of excellent public and private schools, including Morphett Vale East Primary, Wirreanda Secondary School and Woodcroft College. Additionally, only 40 minutes (approximately) to the CBD and near the ever-popular McLaren Vale wine region with an abundance of restaurants and wineries for you to enjoy, this is the lifestyle you have been longing for!
For further information please contact John Ktoris on 0438 945 704 or 8269 7711 (office).
All information provided has been obtained from sources we believe to be accurate, however, we cannot provide any guarantee and we accept no liability for any errors or omissions (including but not limited to a property's land size, floor plans and size, building age and condition). Interested parties should make their own inquiries and obtain their own legal advice.
RLA 313174
