Contemporary, Renovated Home in an Idyllic Location
Welcome to this charming and beautifully renovated abode, situated on a spacious 630sqm (approximate) block that is perfectly nestled within a leafy pocket of Modbury. Ideally positioned, it’s just a short drive to Westfield Tea Tree Plaza and within walking distance of Sir Frank Berryman Reserve comprising a playground and expansive greenery for the whole family to enjoy.
Step inside to discover a bright interior complemented by modern flooring, setting a welcoming tone throughout the home. The light-filled open plan living, dining and kitchen area provides the perfect space for everyday comfort and effortless entertaining. Outside, the rear yard features a covered entertaining area overlooking the manicured gardens - an ideal spot to relax while watching the kids and pet’s play.
Whether you are seeking a quality first home, a family abode to live in within a high demand area, or looking for an investment property, then this gorgeous home is the one for you!
Features that make this home special:
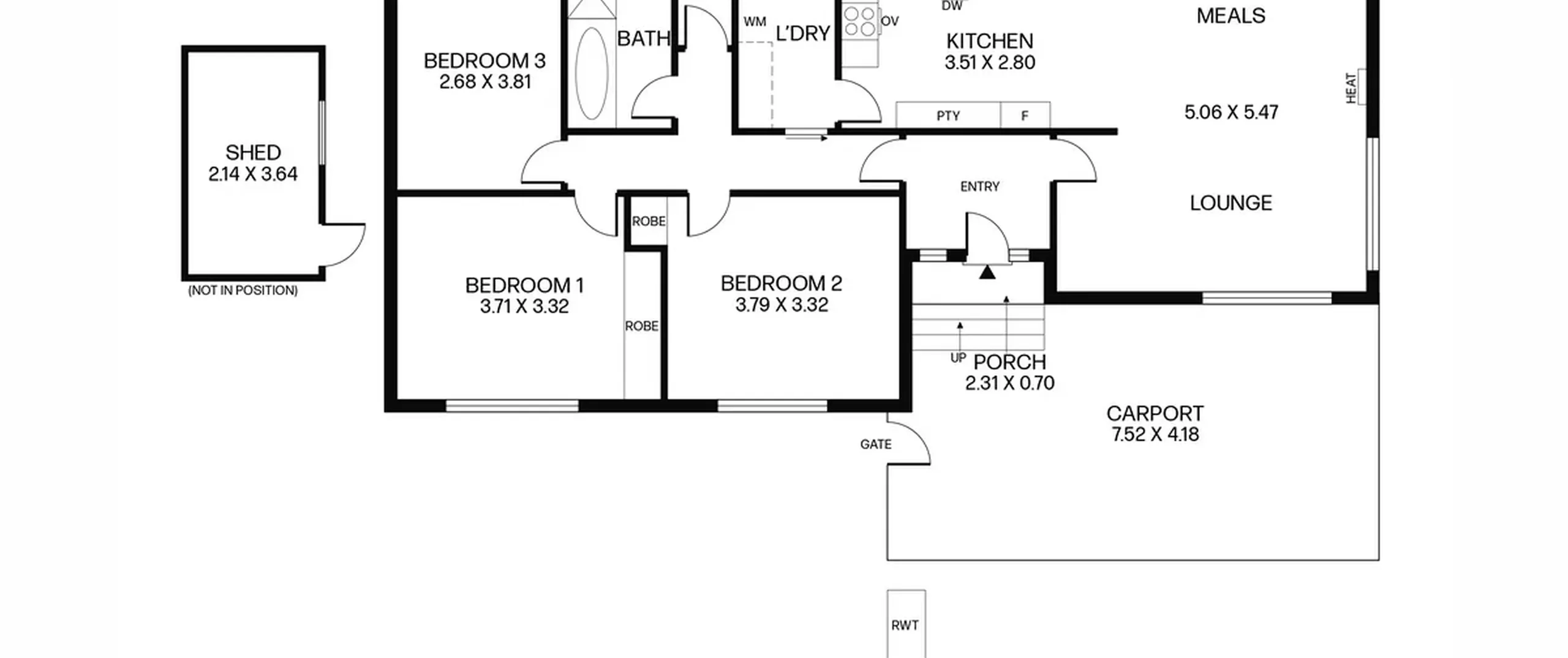
- Three spacious bedrooms, bedrooms one and two featuring built-in robes
- Light-filled lounge and meals area featuring expansive windows and cosy gas heating
- Chic, brand new kitchen complete with new gas cooktop, oven and stainless-steel dishwasher
- Neat and tidy bathroom with bath, shower, vanity and separate toilet
- Laundry with direct outdoor access
- Verandah, perfect for outdoor entertaining
- Beautifully manicured, low-maintenance front and rear gardens
- Single carport with valuable additional off-street parking
- Garden/tool shed for storage
- Rainwater tank
- Newly installed carpets in all bedrooms and floating floors throughout living areas
- Newly installed blinds and curtains throughout the home
- Freshly painted inside and out
Located in close proximity to a great variety of early learning centres, public and private schools. Various sporting grounds and parks are all nearby and easy access to the CBD via the O'Bahn at Tea Tree Plaza Interchange.
All information contained herewith, including but not limited to the general property description, price and the address, is provided to Boffo Real Estate by third parties. We have obtained this information from sources we believe to be reliable; however, we have not verified and do not guarantee its accuracy. The information contained herewith should not be relied upon and you should make your own enquiries and seek advice in respect of this property or any property on this website.
The Vendor's Statement (Form 1), the Auction Contract and the Conditions of Sale will be available for perusal by members of the public - (A) at our office located at 78-80 North East Road, Walkerville for at least 3 consecutive business days immediately preceding the auction; and (B) at the place at which the auction is to be conducted for at least 30 minutes immediately before the auction commences.
Looking to purchase this property as an investment? Speak to our Property Management team to see how we can assist.
RLA 313174
