Delightful Family Home!
A fantastic opportunity is on offer for you to secure this well presented and updated family home located in a beautiful street in the Housing Diversity Neighborhood of Modbury with an approximate frontage of 18.30sqm. The possibilities are endless (subject to planning consents) with this thoughtfully designed home. There is room for everyone to enjoy this spacious property with comfortable year-round entertaining options on offer with multiple internal living areas and a large entertaining area, perfect for hosting guests.
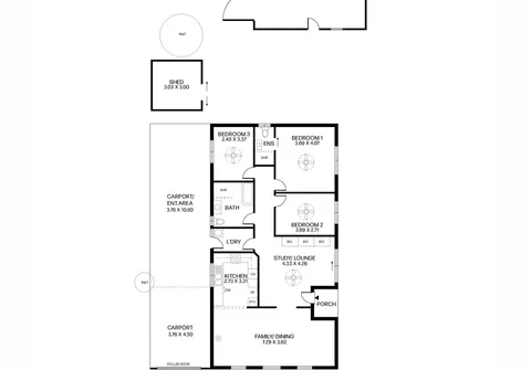
Inside, this home has been freshly painted throughout and is comprised of three bedrooms including a spacious main bedroom which benefits from a newly renovated ensuite and ceiling fan for added comfort. Bedrooms 2 and 3 are both of good size and are serviced by the brand new main bathroom with shower and separate bath.
A stylish kitchen is perfectly positioned and well-equipped to suit the cook of the home with gas cooking and modern appliances including a dishwasher. Completing the practical floor plan is a newly renovated laundry, garden shed, rainwater tanks and a large shed/workshop. Parking is taken care of with a carport for secure multiple parking options and an additional parking space for your caravan or trailer.
Features that make this home special:
- Generous main bedroom with ceiling fan and brand new ensuite
- Good sized bedroom 2 and 3, both with ceiling fans
- Convenient separate study\lounge room with built-in cupboards and complete with ceiling fan
- Bright and spacious family/dining room with three feature arched windows, flooding the space with plenty of natural light
- Modern kitchen with pantry, ample storage space, dishwasher and gas cooktop
- Contemporary newly renovated main bathroom with separate bath and shower and featuring floor-to-ceiling tiles
- Brand new laundry with external access
- Floating floorboards throughout the home
- Detached shed/workshop with ceiling fan, double door access and external access, perfect for your next DIY project
- Rooftop solar panels
- Garden shed
- Save on water bills with 3x rainwater tanks connected to house and garden
- Expansive outdoor undercover entertaining area, plus a separate fire pit area with wood-fired BBQ set amongst established gardens
- Single carport with automatic roller door and drive through access to entertaining area for optional extra car spaces
- Immaculate front gardens with gated access to the rear of the home and long driveway for additional off-street parking
- Private and secure fenced backyard with no rear neighbour, instead backing on to Modbury High School Oval; perfect for kids and pets
Perfectly positioned within walking distance to Tea Tree Plaza, North East Modbury Medical & Dental Centre, Modbury Hospital, Civic Park, City of Tea Tree Gully Library and public transport options including the City via The O-Bahn Interchange. Excellent public and private schools are only a short distance away. All this and only 14.7km (approximately) from the Adelaide CBD.
For further information please contact Allison Bartlett on 0456 019 292 or 8269 7711 (office).
All information contained herewith, including but not limited to the general property description, price and the address, is provided to Boffo Real Estate by third parties. We have obtained this information from sources we believe to be reliable; however, we have not verified and do not guarantee its accuracy. The information contained should not be relied upon and you should make your own enquiries and seek advice in respect of this property or any property on this website.
The Vendor's Statement (Form 1), the Auction Contract and the Conditions of Sale will be available for perusal by members of the public - (A) at our office located at 78-80 North East Road, Walkerville for at least 3 consecutive business days immediately preceding the auction; and (B) at the place at which the auction is to be conducted for at least 30 minutes immediately before the auction commences.
RLA 313174
