Opportunity Awaits
Prime opportunity to secure a fantastic property situated on a generous 733sqm (approximate) block with a 13m (approximate) frontage. Located in the heart of Modbury and next to a well maintained park with playground, this home is sure to impress the astute buyer. Renovate and add value, restore and rent out, redevelop and renew the choice is yours (all subject to council consent)!
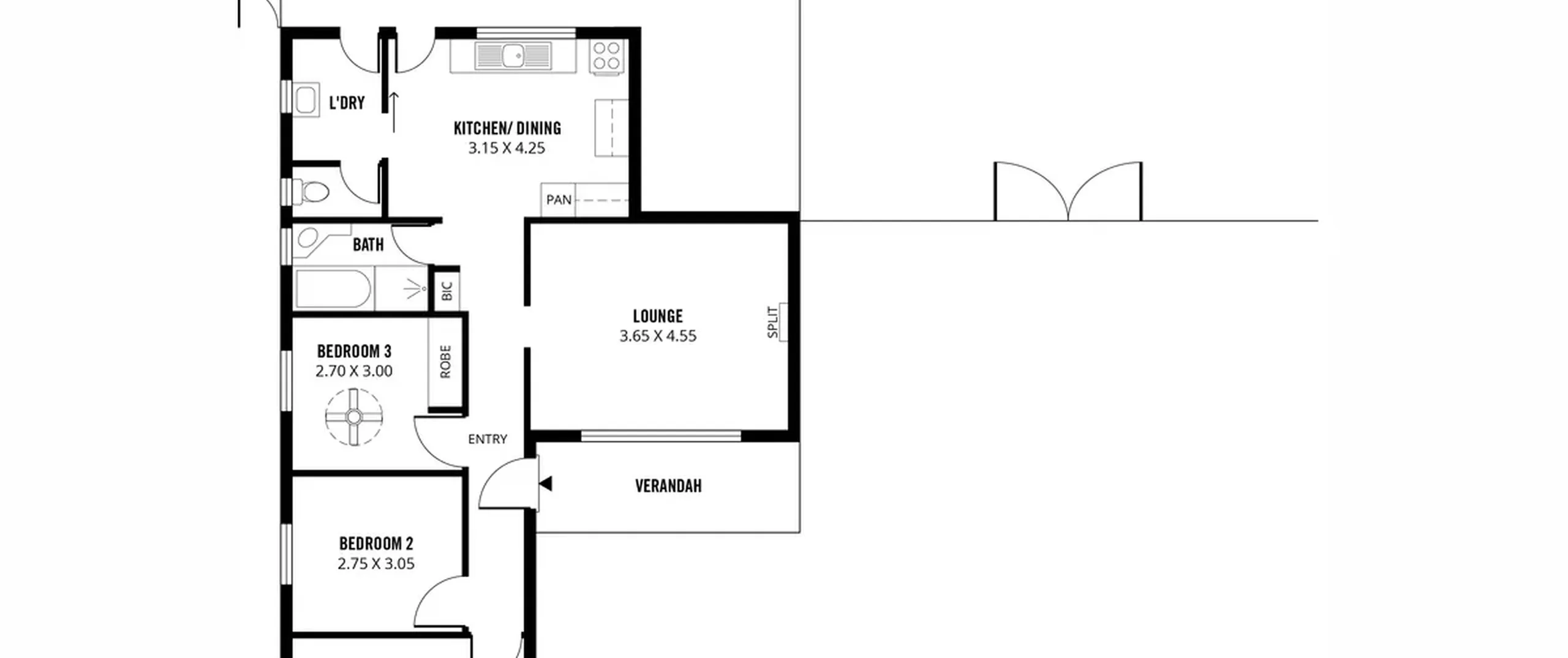
Features that make this home special:
- Bedroom 1 with built-in robe and ceiling fan
- Good sized bedroom 2 and 3; bedroom 3 with ceiling fan
- Large formal lounge with split system air conditioner
- Practical kitchen with ample cupboard and bench space
- Main bathroom with bath, separate shower and separate toilet
- Spacious laundry
- Fully fenced yard
- Off street parking with drive through access to double garage at rear
- Original timber floors throughout
- NBN
Less than 15 minute walk to Tea Tree Plaza, O-Bahn bus services and Modbury Hospital.
A variety of excellent schools nearby including Modbury South Primary School and Modbury High School, both within a short walking distance. All this and just 15km (approximately) to the Adelaide CBD.
For further information please contact James Rawkins on 0408 081 826, Lidija Kies on 0477 779 579 or 8269 7711 (office).
RLA 200591
