Prepared To Be Impressed!
Securely elevated back from Kelly Road with its own private service road, this stunning freshly renovated 3 bedroom home will appeal to the growing family, first home buyer, astute investor or even empty nesters looking for something modern, secure and low maintenance. Meticulously renovated from top to bottom, this home situated on a 556sqm (approximate) allotment offers a nothing to do, just move in and enjoy opportunity for its new owner. Beautifully landscaped throughout and with private secure rear and side yards for the family and friends.
Features that make this home special!
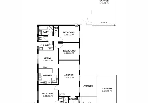
- Large master bedroom with a sparkling new renovated ensuite and shower
- Good sized bedrooms 2 and 3, both with new carpet and bedroom 3 offering an air conditioning unit
- Large and spacious, light filled formal lounge room
- New custom modern kitchen with soft close drawers, pura tap, stainless steel appliances, ample bench and cupboard space, gas cooktop and great sized pantry
- Large light filled dining area that runs of the kitchen area
- Stunning renovated main bathroom with separate bath, shower and separate wash closet
- Spacious renovated laundry with storage
- Fantastic storage closet in the hallway
- Spectacular polished floor boards
- LED downlights throughout the house
- Fully fenced, secure yard
- Manicured gardens
- Roof refurbishment
- 7.1 x 4.1 garden shed with independent power and lighting
-Instantaneous hot water service
- Secure carport with roller door
- Drive through access for the boat or caravan
Located within walking distance to Clovercrest Village and only a short distance to all the shopping and entertainment that the newly updated Tea Tree Plaza has to offer. Public transport including the City via The O-Bahn Interchange, sporting clubs, local parks, Modbury Hospital and a variety of public and private schools are all only a short distance away. All this and 14kms (approximately) to the Adelaide CBD.
For further information please contact Darren Cowey 0439 160 161 or James Rawkins on 0408 081 826 or 8269 7711 (office).
RLA 200591
