An Impressive Rambling Residence On A Superb Block Of 810sqm (approx.)!
This extensive double brick home built in 1980 on a structurally suspended slab has been loved and is still owned by the original family. The property has been very well maintained to suit the most fastidious buyer. This substantial residence sits proudly in the sought after suburb of Modbury, walking distance to Tea Tree Plaza, the Modbury Hospital, schools and transport (by way of the OBahn).
Features that make this home special:
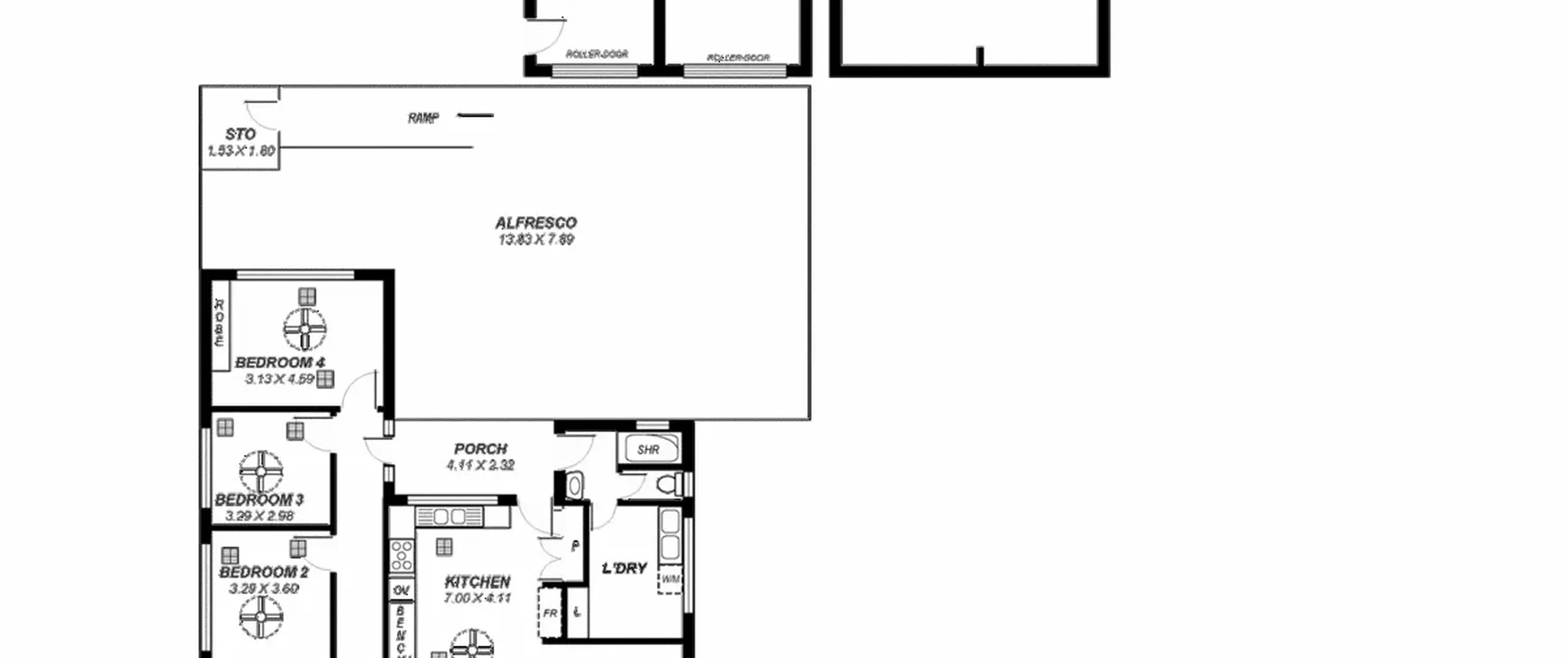
- Master bedroom with built-in robe, ceiling fan and ensuite
- Spacious bedrooms 2,3 and 4, all with ceiling fans, bedroom 4 with built-in robe
- Light filled living room with heater
- Neat and tidy eat-in kitchen with gas cooktop and ample bench and cupboard space
- Dining room adjacent kitchen
- Study nook
- Main bathroom with separate bath and shower + separate toilet
- Additional third bathroom with shower and toilet for your convenience
- Separate large laundry with linen cupboard
- Ducted gas heating and ducted evaporative cooling throughout
- Expansive alfresco with store room
- Teenagers retreat + cellar room
- Fully fenced, manicured front and rear gardens
- Roof top balcony
- Roller shutters to all windows
- Chicken coop
- Vegetable patch
- 1,000 litre rain water tank (can be plumbed to kitchen and laundry)
- Tool shed
- Double garage with roller doors
- Undercover parking for an additional 3 cars under alfresco
Located only 25 minutes from the city via the OBahn and only a short walk to all the shopping and entertainment that Tea Tree Plaza has to offer. In close proximity to Modbury Hospital, restaurants and a variety of childcare, primary and high schools. This is a place you can truly call home.
For further information please contact Annamaria Varelias on 0487 487 383 or 8269 7711 (office).
RLA 200591
