Comfortable Family Living
This humble abode is located just moments from the local bus stop, parks and schools and is situated on a large 585sqm (approximate) corner allotment. Offering a savvy opportunity for investors with the potential for future development and with a lease already in place, this makes for a set-and-forget addition to any property portfolio.
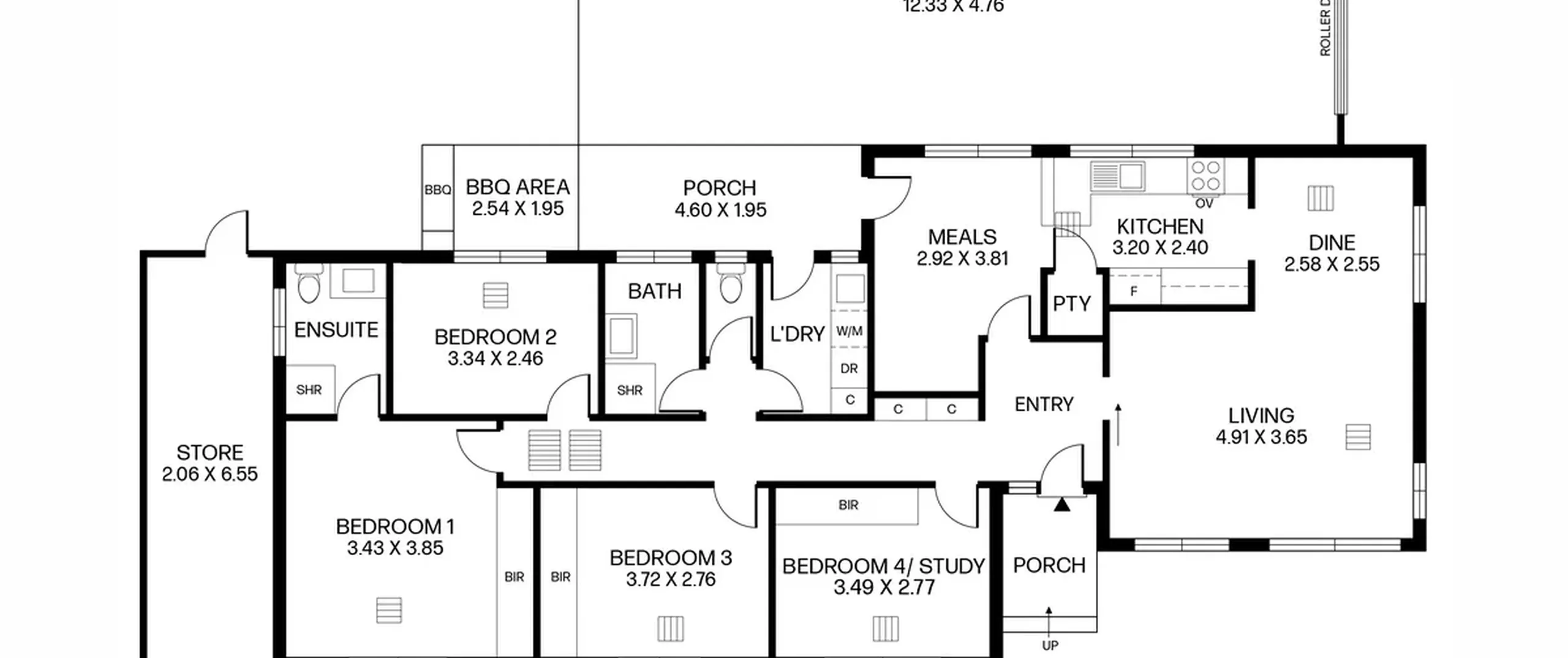
The layout features three bedrooms plus a study or optional fourth bedroom, one bathroom, plus a large and light-filled living and dining room. A separate kitchen and additional meals area offers a relaxed space to enjoy casual dining while outside, the rear porch and BBQ area ensures plenty of shade as you host guests.
An external store room offers storage space and there is also a double length carport, a good-sized yard, practical laundry and air-conditioning throughout to complete this impressive home. Whatever your vision for the future, this prized property in a central location has something for everyone.
Features that make this home special:
- Spacious master bedroom with built-in robe and convenient ensuite
- Bedroom 2 and 3 of good size; bedroom 3 with mirrored built in robe
- Optional 4th bedroom, or study with built-in robe
- Light filled open plan living and dining area
- Additional meals area adjacent to the kitchen
- Practical kitchen complete with gas cooktop, oven, walk-in pantry plus ample cupboard and bench space
- Centrally located main bathroom with floor to ceiling tiles
- Separate laundry with built-in joinery and external access
- Ducted air conditioning throughout
- BBQ area under porch, perfect for entertaining friends and family
- Low maintenance and secure yard with artificial lawn for pets and kids to enjoy
- Large external store room
- Carport with roller door and driveway for additional off-street parking
Superbly located only minutes away from all the shopping and entertainment that Westfield Tea Tree Plaza has to offer. Within a short distance from Clovercrest Village, public transport options and a variety of local parks plus the ever-popular Waterworld Aquatic Centre. Additionally in close proximity to a variety of excellent public and private schools, including The Heights School, Pedare Christian College, Modbury West, Gleeson College and Kildare College.
For further information please contact Graeme Brown on 0455 111 791, Debbie Orr on 0427 530 946 or 8269 7711 (office).
All information contained herewith, including but not limited to the general property description, price and the address, is provided to Boffo Real Estate by third parties. We have obtained this information from sources we believe to be reliable; however, we have not verified and do not guarantee its accuracy. The information contained should not be relied upon and you should make your own enquiries and seek advice in respect of this property or any property on this website.
RLA 313174
