Contemporary Living in a Great Location Ready and Waiting for You!
This single-storey home is nestled along a quiet street, surrounded by other quality homes and is set perfectly on a large 558sqm (approximate) allotment with a 18.3m (approximate) frontage in the popular high growth area of Modbury North.
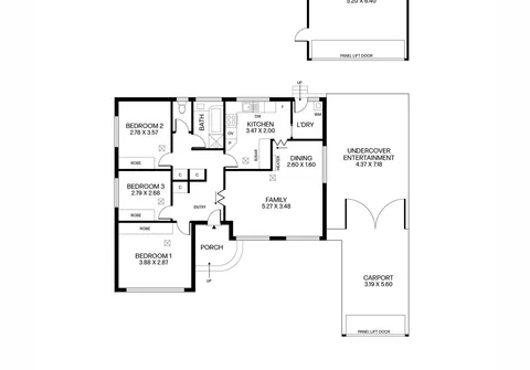
The well-designed layout is functional and comfortable with a light and inviting living, meals and kitchen area, three large bedrooms and one central bathroom. The kitchen provides ample cupboard space and to complete the layout there is the convenience of a separate laundry with external access.
Positioned in an attractive tree lined street this is an exciting entry point into a hugely popular suburb. Located within close proximity from one of Adelaide's leading schools, 'The Heights School / Preschool to Year 12' and only a short drive to the shopping and entertainment of Westfield Tea Tree Plaza.
From first-home buyers and young families to downsizers and investors, this is the property for you!
Features that make this home special:
- Master bedroom with built-in robe
- Bedrooms 2 and 3 of good size, complete with built-in robes
- Modern and bright kitchen complete with dishwasher, gas cook top and built-in breakfast nook
- Spacious and light-filled dining and family room with gas wall heater
- Neat and tidy bathroom with separate bath and shower + separate toilet for your convenience
- Separate laundry with direct access to rear yard
- Ducted evaporative air conditioning throughout + gas wall heater
- LED downlights
- Modern flooring throughout
- Built-in cupboards, perfect for additional storage
- Undercover verandah, ideal for outdoor entertaining with family and friends
- Low maintenance established gardens
- Garage with panel lift door
- Undercover carport + driveway with space for additional cars
Note: All grassed areas for illustration purposes only
Ideally located close to Clovercrest Village and a variety of early learning centres, public and private schools. Direct connection to public transport options such as the O-Bahn. All the shopping and entertainment that Tea Tree Plaza has to offer is only a quick drive away. An easy 15km drive (approximate) to the CBD.
For further information, please contact Mark Fricker on 0413 000 845 or 8269 7711 (office).
All information provided has been obtained from sources we believe to be accurate, however, we cannot provide any guarantee and we accept no liability for any errors or omissions (including but not limited to a property's land size, floor plans and size, building age and condition). Interested parties should make their own inquiries and obtain their own legal advice.
RLA 313174
