Fantastic Opportunity and a Great Location
This fabulous 4 bedroom renovated family home is immaculately presented leaving nothing more to do other than move in and enjoy. Situated on a generous 595sqm (approximate) block in the highly sought after location of Modbury North, this home will truly spoil the whole family.
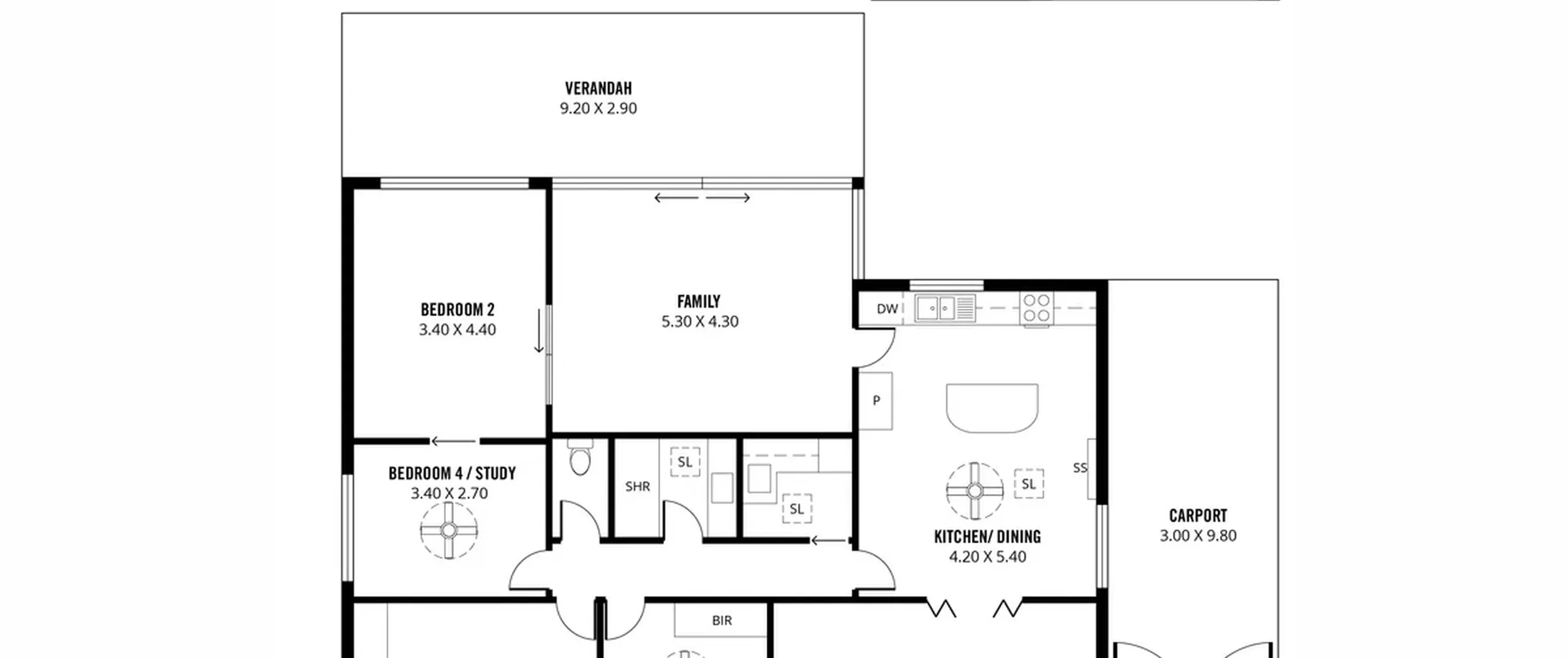
Features that make this home special:
- Large master bedroom with built-in robe and ceiling fan
- Large second bedroom at rear
- Good sized bedroom 3 and 4, both with ceiling fan and bedroom 3 with built-in robe
- Spacious, light filled lounge room with ceiling fan
- Huge family room with sliding doors leading to the outdoor entertaining area
- Modern and stylish kitchen with gas cooktop, dishwasher, with ample cupboard and bench space plus island bench with valuable breakfast bar
- Dining area adjacent kitchen with skylight, ceiling fan and split system air conditioner
- Fully renovated bathroom with a gorgeous large shower and skylight
- Separate toilet
- Separate, fully renovated laundry with ample bench and cupboard space and skylight
- Polished floorboards throughout home
- NBN Connected
- Rollers shutters to the front of the house and automatic shutters to the lounge room
- Verandah area, perfect for outdoor entertaining
- Built in BBQ area with built in bench seats and ice chest for superb outdoor entertaining
- Fully fenced, manicured rear gardens
- Double length carport for room up to 2 cars
- Single garage with panel lift door
Situated in close proximity to Tea Tree Plaza, public transport and The O’Bahn, public and private schools and parks. All this and only approximately 14kms to the CBD making this the perfect place to call home.
For further information please contact James Rawkins on 0408 081 826 or 8269 7711 (office).
RLA 200591
The Vendor's Statement (Form 1), the Auction Contract and the Conditions of Sale will be available for perusal by members of the public -
(A) at our office located at 87 North East Road, Collinswood for at least 3 consecutive business days immediately preceding the auction; and
(B) at the place at which the auction is to be conducted for at least 30 minutes immediately before the auction commences.
