Your Dream Starts Here!
Whether you’re looking for an ideal family home with a fully enclosed and secure rear yard, a house to renovate and add your own personal touches to, rent out and reap the rewards or redevelop (subject to council consent) this home is perfect for you! This 1975 built home on a 641sqm (approximate) allotment with a 21.8m (approximate) frontage in the popular and sought-after, family friendly area of Modbury North offers so much potential. Evoking the tranquil feel of the country combined with the convenience of city living, this rare opportunity won’t last long!
Features that make this home special:
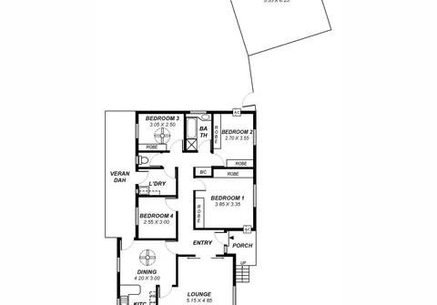
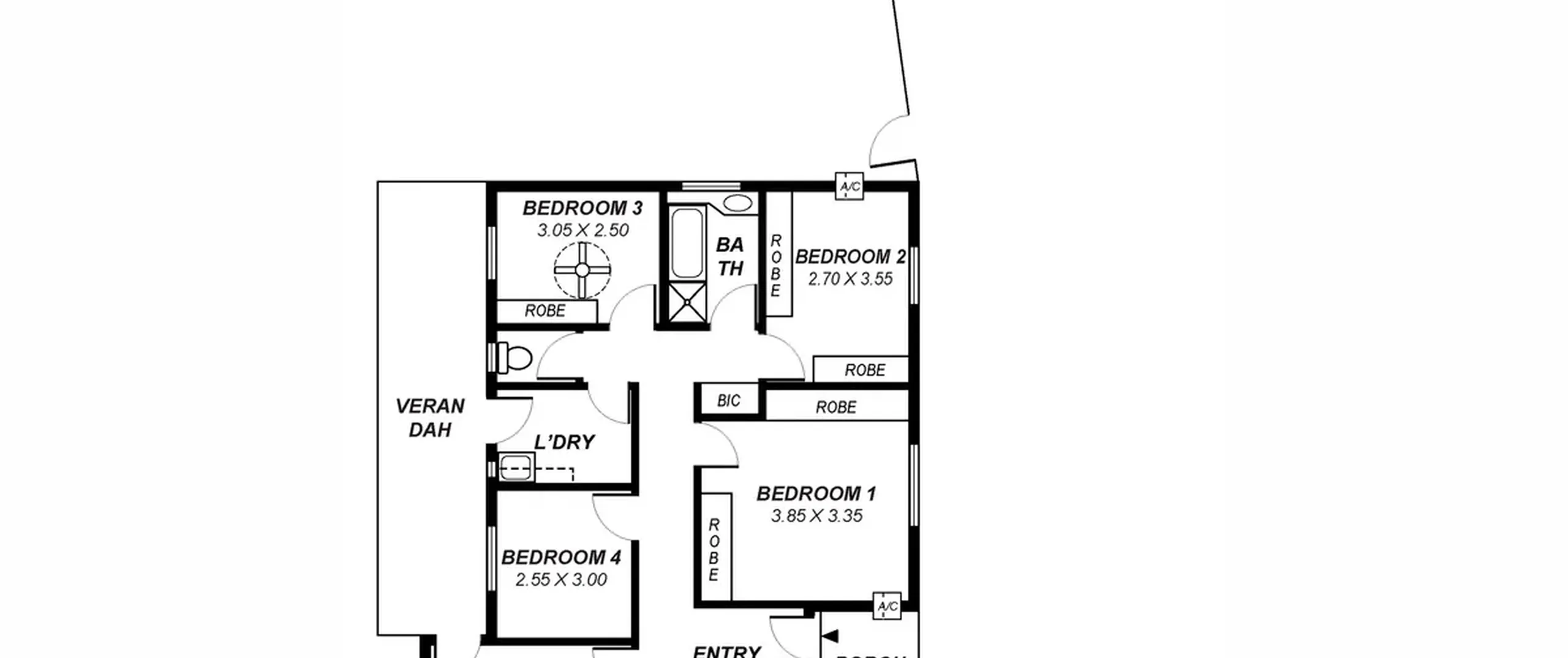
- Master bedroom with double built-in robes, reverse cycle wall mounted air conditioning and hills and city views
- Generous size bedroom 2 with wall mounted air conditioner and double built-in robes
- Good size bedroom 3 with ceiling fan and built-in robe
- Bedroom 4 or good sized study
- Spacious light filled lounge room with gas wall heater, reverse cycle wall mounted air conditioner and corner window that shows off the unparalleled views to the hills, Tea Tree Plaza and beyond
- Large dining area with ceiling fan
- Serviceable kitchen with gas cooktop and ample cupboard and bench space
- Polished floorboards throughout
- Original, serviceable main bathroom with separate bath and shower
- Recently renovated separate toilet and separate laundry
- 4.5kw solar electrical system for energy efficiency
- Fully fenced secure rear yard
- Powered double garage at rear of driveway
- Parking for up to 5 extra cars on the driveway
With a beautiful view of the hills, you will not want to miss out on this property!
Metres away from feeding the wildlife at Drumminor Lake, Ashley Reserve with picturesque off-street walking and riding path to Golden Grove, Tea Tree Plaza and further adjoining Linear Park to the city. Walking distance to the local attractions of Waterworld, Tea Tree Plaza's shopping and newest restaurant precinct and Modbury hospital. Numerous O-Bahn bus services available at the end of your street to take you direct to the City, Marion or the Airport. Your options are endless.
For further information please contact James Rawkins on 0408 081 826 or 8269 7711 (office).
RLA 200591
