Sensational 5 Bedroom Family Home
This unique family home is set amongst other quality homes on large residential blocks in the sought after suburb of Modbury North and was designed for families that need their own space. With two separate living areas on the upper level and a third living area on the lower level, as well as bathrooms on both levels, this home provides ample space for the entire family to live and play.
Situated on a massive 1240sqm (approximate) allotment with fantastic street appeal, this opportunity is not to be missed!
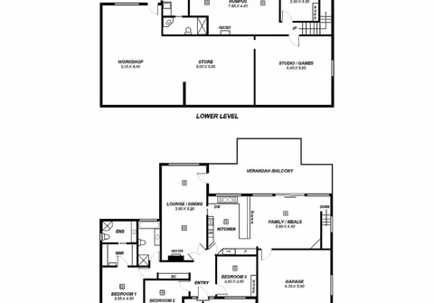
Upper level comprising of:
- Large master bedroom with walk-in robe and ensuite
- Good sized bedrooms 2 and 3, bedroom 3 with built-in robe
- Light filled open plan family/meals area
- Modern kitchen with Bosch dishwasher, gas cooktop, ample bench and cupboard space and breakfast bar
- Spacious formal lounge and dining room with heater
- Main bathroom with separate bath and shower
- Laundry chute to lower level
- Large undercover balcony, ideal for outdoor entertaining
- Double garage with automatic roller doors and direct internal entry
Lower level comprising of:
- Generous sized bedrooms 4 and 5, both with built-in robe
- Large rumpus room with heater
- Neat and tidy bathroom with shower
- Separate laundry
- Huge studio/games room
- Massive store room and workshop
- Large rear yard
Other features of this home include:
- Ducted reverse cycle air conditioning throughout
- 2.7m high ceilings on both levels
- NBN Connected
- Alarm system
Local public and private schools, sporting facilities, shopping and medical centres including the Modbury Hospital are all nearby. Easy access to public transport options including the CBD via the O-Bahn. All this and only minutes to all of the shopping and entertainment that Tea Tree Plaza has to offer.
For further information please contact Graeme Brown on 0455 111 791 or 8269 7711 (office).
RLA 200591
