Fantastic Family Home on 1010sqm Allotment
Situated at the end of a quiet cul-de-sac and on a massive 1010sqm (approximate) allotment in the sought after suburb of Modbury North, this unique family home offers a tranquil lifestyle with direct access to the reserves and walking trails of Dry Creek. With multiple undercover carports, there is plenty of room for your caravan, boat or trailer. Providing ample space for the entire family to live and play, this opportunity is not to be missed!
Features that make this home special:
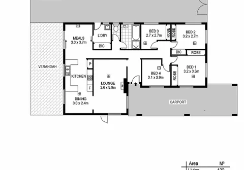
- 4 good sized bedrooms, bedrooms 1, 2 and 3, all with built-in robes
- Large lounge with fireplace
- Gorgeous windows allowing natural light filled rooms throughout.
- Modern kitchen with ample bench and cupboard space and breakfast bar
- Dining area adjacent kitchen
- Meals area or study space with split system air conditioner
- Newly renovated bathroom with separate bath and shower + separate toilet
- Separate laundry with ample storage space
- Ducted reverse cycle air conditioning throughout
- Rear verandah, ideal for outdoor entertaining
- Paved courtyard
- Neat and tidy rear yard
- Garden with dripper sprinkler system
- Huge side verandah or additional carport for up to 10 vehicles
- Double length carport at front of home
Ideally located in Modbury North in the Residential Growth Policy Area 11 with direct access to Dry Creek Reserve and walking trails and a Primary School outside back gate. Within walking distance to Tea Tree Plaza, North East Modbury Medical & Dental Centre, Modbury Hospital, Civic Park, City of Tea Tree Gully Library and public transport options including the City via The O-Bahn Interchange. Excellent public and private schools are located nearby. All this and just 15km (approximately) to the Adelaide CBD.
For further information please contact Mark Fricker on 0413 000 845 or 8269 7711 (office).
RLA 200591
The Vendor's Statement (Form 1), the Auction Contract and the Conditions of Sale will be available for perusal by members of the public -
(A) at our office located at 434 Montague Road, Modbury North for at least 3 consecutive business days immediately preceding the auction; and
(B) at the place at which the auction is to be conducted for at least 30 minutes immediately before the auction commences.
