Endless Potential!
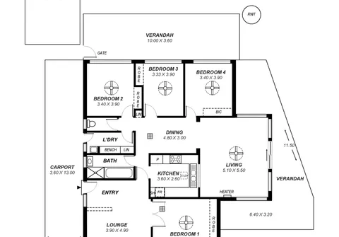
This delightful 4 bedroom home sits on approximately 691sqm with a wide frontage of approximately 28 metres. The home offers an abundance of space for the growing family and will appeal to young families and the savvy investor.
Features that make this home special:
- 4 spacious bedrooms, all with built-in robes and ceiling fans
- Light filled lounge
- Updated kitchen with ample bench and cupboard space
- Large living room with ceiling fan and heater
- Neat and tidy bathroom with separate bath and shower + separate toilet
- Separate laundry with built-in cupboards and benchtop
- Expansive verandah
- Rainwater tank
- Low maintenance front and rear yard
- Single garage
- Double length carport with gate access
Situated in close proximity to Tea Tree Plaza, public transport and The O’Bahn, public and private schools and parks. All this and only approximately 14kms to the CBD. This the perfect place to call home.
For further information please contact Gordon Little on 0418 824 036 or 8269 7711 (office).
RLA 200591
