Summertime Stunner On Substantial Corner Allotment!
This beautifully presented family home stands proud on a huge 930sqm (approximate) corner block. The perfect combination which will be sure to please a range of savvy buyers. With an immediately enjoyable, updated family home plus ample future potential with the sought after corner block providing many exciting possible subdivision options (all subject to council approval).
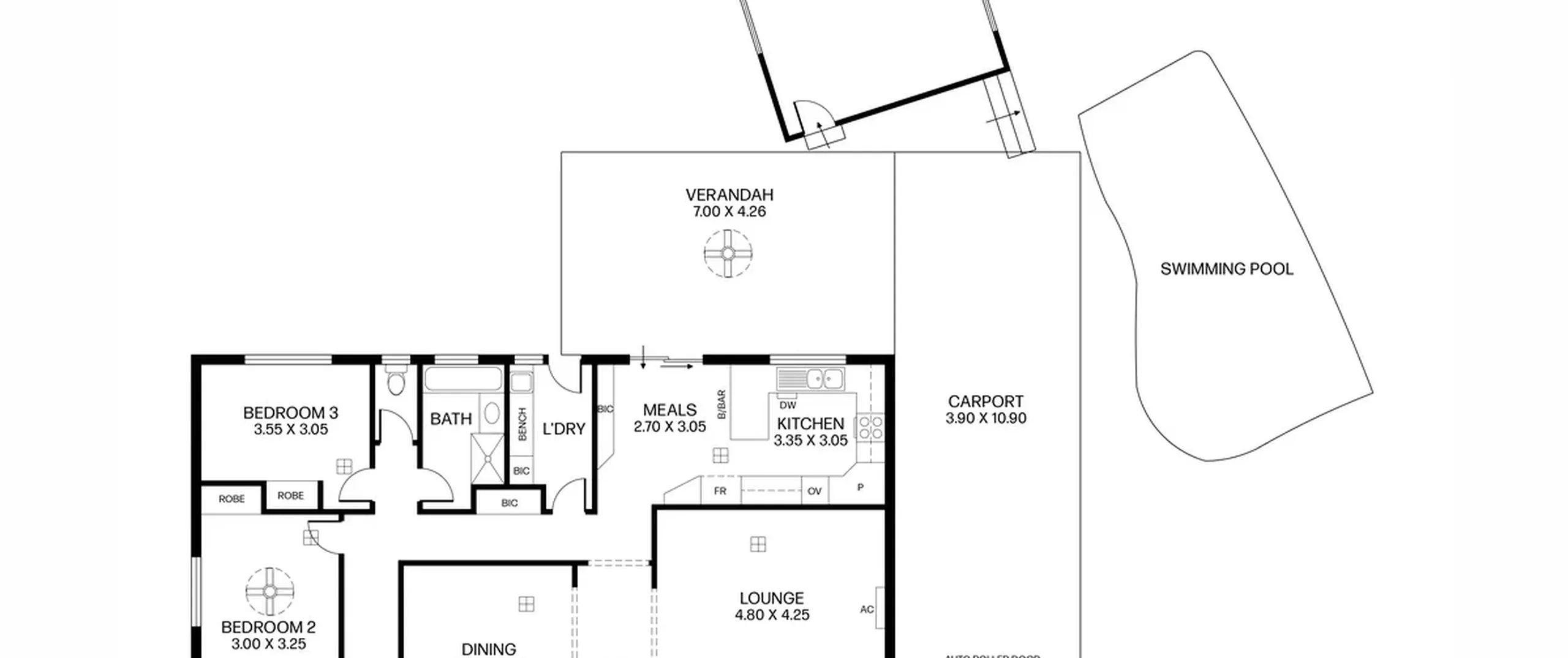
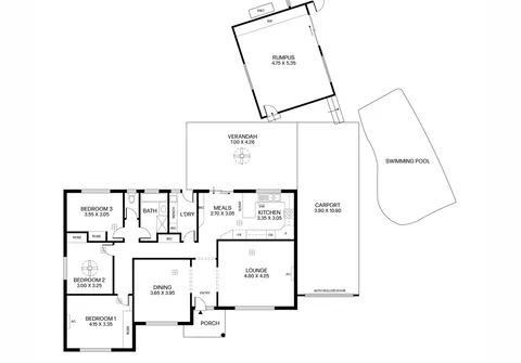
Featuring multiple living rooms, an open plan kitchen/meals area and three spacious bedrooms. Outside comprises a large undercover outdoor entertaining area that overlooks the lush green lawn, making the perfect space to entertain with family and friends. Additionally providing a substantial shed plus external rumpus room which could provide accommodation as a fourth bedroom. The sparkling in-ground swimming pool completes the package, perfect for the warmer months ahead.
This home is sure to appeal to families looking for convenience and room to play or investors looking to rent out and reap the rewards or subdivide (subject to council consent).
You will live just a short walk from The Heights School and only minutes from all the shopping, dining and entertainment of Tea Tree Plaza.
Features that make this home special:
- Large master bedroom with built-in robe and split system air conditioner
- Bedrooms 2 and 3 with built-in robes, with bedroom 2 including a ceiling fan
- Spacious lounge room with split system air conditioner
- Formal dining room
- Open plan kitchen/meals area connecting seamlessly to the outdoor entertaining area
- Stylish kitchen with gas cooktop, breakfast bar, dishwasher and ample bench and cupboard space
- Main bathroom with separate bath and shower and convenient separate toilet
- Laundry with external access
- Ducted evaporative cooling
- Ducted gas heating
- External rumpus room with built-in cupboards, perfect to use as an additional bedroom, living room or teenage retreat
- Sparkling salt chlorinated swimming pool
- Undercover outdoor entertaining area with pitched roof and ceiling fan
- Large rear yard your children and pets will appreciate
- Double length carport with automatic roller door
- Large rear shed with plenty of room for storage
- An orchid of glorious fruit trees, including lime, lemon, apple, pear, peaches, plum, orange and passionfruit!
- 2 x rainwater tanks
Located in close proximity to a great variety of early learning centres, public and private schools including Modbury Preschool to Year 7, Modbury High, Modbury South Primary and Gleeson College. Easy access to the CBD via the O'Bahn at Tea Tree Plaza Interchange or simply walk to the bus stop on Milne Road.
Your inspection is highly recommended!
For further information please contact Gabriel Titmarsh on 0497 191 000 or 8269 7711 (office).
RLA 200591
The Vendor's Statement (Form 1), the Auction Contract and the Conditions of Sale will be available for perusal by members of the public - (A) at our office located at 78-80 North East Road, Walkerville for at least 3 consecutive business days immediately preceding the auction; and (B) at the place at which the auction is to be conducted for at least 30 minutes immediately before the auction commences.
