Finders Keepers!
Set on a large 685sqm (approximate) allotment with a 19.5m (approximate) frontage in the sought-after suburb of Modbury Heights, this well-maintained home boasts peaceful views with a reserve directly across the road. Offering the new owner a multitude of options including: live in and enjoy, renovate and add your own personal touches, rent out and reap the rewards or redevelop (subject to council consent). Appealing to couples, families and investors, this one won't last long!
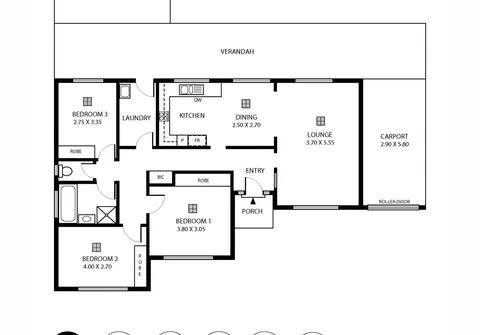
Features that make this home special:
- Three generous sized bedrooms, all with built-in robes
- Spacious light-filled lounge
- Modern kitchen with gas cooktop, dishwasher, stainless steel appliances and ample bench and cupboard space
- Dining area adjacent kitchen
- Updated main bathroom with floor-to-ceiling tiles, separate bath and shower + separate toilet
- Separate laundry
- Additional storage throughout
- Ducted cooling
- Large verandah and pergola, ideal for outdoor entertaining
- Large, secure rear yard
- Single carport with roller door
- Solar electrical system for energy efficiency
Ideally located only a short distance to The Heights School, local shops and many public transport options. All of the shopping and entertainment that Tea Tree Plaza has to offer nearby and easy access to the CBD via the O-Bahn!
For further information, please contact Mark Fricker on 0413 000 845 or 8269 7711 (office).
RLA 200591
